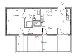
Découvrez ce magnifique appartement T2 de 40 m², situé au 4ème et dernier étage d'un immeuble récent de 2023, offrant une vue dégagée et une exposition sud ensoleillée. Cet appartement de standing est en excellent état et dispose d'une terrasse de 22 m², parfaite pour profiter des beaux jours.
L'appartement comprend une cuisine, une chambre spacieuse, une salle d'eau et des WC. Conforme aux normes PMR, il est équipé d'un chauffage individuel et d'un ascenseur pour votre confort. Imaginez-vous vivre dans cet espace lumineux et moderne, où chaque détail a été pensé pour votre bien-être. La terrasse vous offre un espace extérieur privatif pour des moments de détente inoubliables.
Ne manquez pas cette opportunité unique de vivre dans un cadre exceptionnel. Contactez-nous dès maintenant pour une visite !
Commodités à proximité : À 5 min à pied, vous trouverez plusieurs restaurants, un parc et jardin, des médecins généralistes, une maternelle et une école élémentaire. À 10 min à pied, des crèches, un collège et plusieurs commerces d'alimentation générale sont accessibles. Les transports en commun sont également bien desservis avec des bus et tramways à 5 min à pied et le métro à 5 min en voiture. Un hôpital est également accessible en 5 min en voiture.
Caractéristiques :
Chauffage ThemaPlus Condens F25 Eau chaude sanitaire Combiné au système de chauffage
DPE : C (96 kWh/m²/an) GES : C (20 kg CO2/m²/an)
Informations financières :
Taxe foncière :
Dépenses energetiques entre 360 et 530 par an
Pour plus d'informations ou organiser une visite, contactez Jaïs Decompoix (RSAC : 890 392 715) au 07 68 52 06 27. Référence : JDE-8151
César et Brutus - Votre projet, notre priorité
Honoraires à la charge du vendeur. Classe énergie C, Classe climat C Montant moyen estimé des dépenses annuelles d'énergie pour un usage standard, établi à partir des prix de l'énergie de l'année 2021 : entre 360.00 et 530.00 . Les informations sur les risques auxquels ce bien est exposé sont disponibles sur le site Géorisques : georisques.gouv.fr.