Honoraires à la charge de l'acquéreur (Prix hors honoraires : 160000 euros).
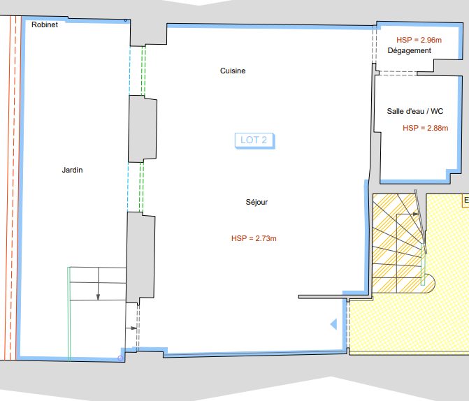
TOULOUSE au coeur du quartier prisé des CARMES À deux pas du métro et des commerces, L'Instant Immobilier vous propose ce charmant appartement T2 de 28,38 m2, niché au 1er étage sur 3 d'un petit immeuble toulousain. Au calme, sur cour, cet appartement bénéficie d'une ambiance paisible tout en profitant de l'attractivité du centre historique des Carmes, l'un des secteurs les plus recherchés de Toulouse. Il se compose d'une pièce de vie agréable et optimisée, avec cuisine équipée (plaque, réfrigérateur, micro-ondes combiné, hotte) et rangements, d'une chambre avec placard, d'une salle d'eau avec WC, accessible depuis un dégagement. Prestations : rénovation récente (2023), climatisation, menuiseries double vitrage. Un investissement clé en main dans un emplacement premium Bien vendu loué et meublé - Loyer mensuel hors charges : 700 EUR - Locataire en place gestion simplifiée Copropriété : 7 lots principaux - Charges : env. 400 EUR/an Taxe foncière : env. 355 EUR Diagnostic : DPE C: 151 kWh/m2/an) - GES A : 5 kg CO2/m2/an) - Estimation des dépenses annuelles d'énergie : entre 470 EUR et 690 EUR (prix indexés 2021-2023 abonnement compris) Les informations sur les risques auxquels ce bien est exposé sont disponibles sur : www.georisques.gouv.fr Prix net vendeur : 160.000 EUR Honoraires à la charge de l'acquéreur : 5 % TTC Prix HAI : 168.000 EUR
28.38 m²
5 920 €
12 m²
2
1
1
1
1 sur 3
5.00 %
33 € / mois
Ouest
Oui (8 lots)
Consommations énergétiques
Logement économe
151
Logement énergivore (kWhEP/m2/an)
Émissions de gaz à effet de serre
Faible émission de GES
5
Forte émission de GES(kgeqCO2/m2/an)
Contact L'instant Immobilier
Contacter gratuitement à l'aide du formulaire ci-dessous.