Vaulx En Velin - Village - Maison Terrasse et Jardin
Vaulx-en-Velin 69120
0
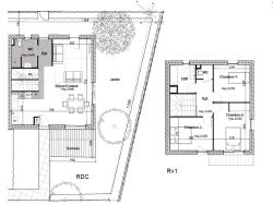
Vaulx En Velin - Village, à proximité des commerces, je vous propose de visiter cette maison de 89,57m² . elle saura vous séduire par sa situation, son séjour avec sa cuisine américaine donnant sur une terrasse de 10m² et son jardin. Elle est aussi composée également d'une salle de bains, de trois chambres et d'un wc . L'appartement dispose d'un garage en sous-sol Bâtiment basse consommation Visuel non contractuel