Goodshowcase

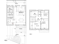
Vente maison 4 pièces
351 000 €

Annonces similaires

Vente maison

Vaulx-en-Velin 69120 - 0

351 000 €

...elle saura vous séduire par sa situation, son séjour avec sa cuisine américaine donnant sur une...

Voir l'annonce

Vente maison

Vaulx-en-Velin 69120 - 0

369 000 €

...La maison possède 96 m² Loi Carrez, complétés par :- Une annexe chauffée de 17 m²- Un garage et...

Voir l'annonce

Vente maison

Vaulx-en-Velin 69120 - 0

360 000 €

...Située dans une résidence sécurisée de 2017, cette belle maison accolée d'un côté vous séduira...

Voir l'annonce

Vente maison

Vaulx-en-Velin 69120 - 0

330 000 €

...Nichée au coeur d'un quartier paisible de Vaulx-en-Velin, cette charmante maison individuelle de...

Voir l'annonce

Vente maison

Vaulx-en-Velin 69120 - 0

295 000 €

...Le bien se compose au rez-de-chaussée d'une spacieuse pièce de vie de plus de 38m² avec cuisine...

Voir l'annonce