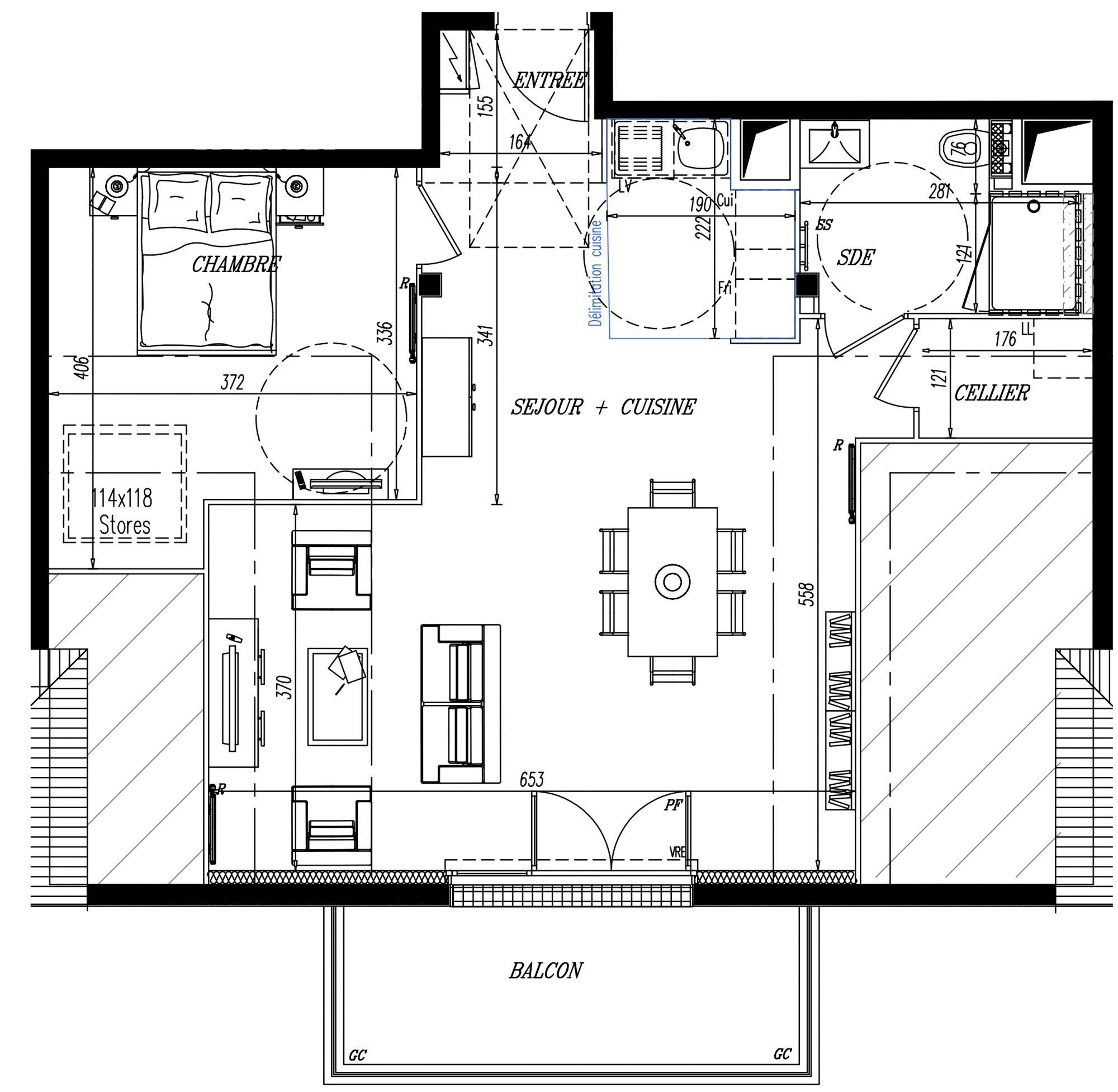
À deux pas du marché de Quimiac et à proximité immédiate de la plage, cet appartement en rez-de-chaussée vous séduira par sa situation centrale. Entièrement rénové en 2012, il développe environ 74 m² habitables et se compose d'une pièce de vie lumineuse avec cuisine ouverte, deux chambres avec placards, une salle d'eau, un WC indépendant, un cellier et une terrasse privative. L'ensemble est en très bon état général.
Ce bien représente un pied-à-terre idéal pour les vacances ou les week-ends en bord de mer.
Avec le Groupe DANTO, bénéficiez d'un accompagnement global grâce à nos services intégrés :
Immobilier, Courtage Crédit, Construction & Travaux.
Bien soumis au statut de la copropriété
14 lots principaux (appartements, locaux commerciaux...)
33 lots (principaux + parking, local poubelles, etc.)
Pas de procédure en cours
Montant annuel des charges générales de copropriétés : 140 €
Les informations sur les risques auxquels ce bien est exposé sont disponibles sur le site de Géoriques : www.georisques.gouv.fr.
73 m²
4 163 €
3
2
1
1
Oui
Oui
Consommations énergétiques
Logement économe
142
Logement énergivore (kWhEP/m2/an)
Émissions de gaz à effet de serre
Faible émission de GES
4
Forte émission de GES(kgeqCO2/m2/an)
Contact DANTO IMMOBILIER
Contacter gratuitement à l'aide du formulaire ci-dessous.