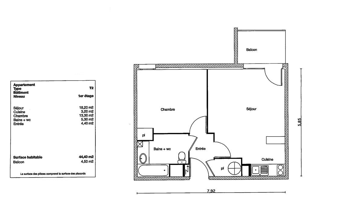
Votre agence WAH We are human Saint-Gely-du-Fesc vous présente en exclusivité cet appartement rénové et climatisé de type 2, d'une superficie de 40,21 m2 loi Carrez avec terrasse, situé dans le quartier de la Valsière, proche des commodités, des écoles et de Montpellier. Vous profiterez d'un salon séjour lumineux avec cuisine contemporaine équipée donnant sur sa terrasse, d'une chambre avec placard, d'une salle d'eau et d'un wc séparé. Vous disposerez d'une place de parking et d'un local vélo. Situé dans une résidence calme, sécurisée et très bien entretenue, cet appartement aux finitions soignées, est à visiter rapidement ! Pour visiter ce bien ou pour tous renseignements complémentaires merci de contacter votre Agent Commercial Mehdi PINARD (enregistrée au RSAC de Montpellier sous le numéro 849 579 750) au 06 30 55 69 79 ou votre Agence WAH We are human au 04 67 54 41 76. Les honoraires sont à la charge du vendeur. OUVERT À L'INTERAGENCE. Les informations sur les risques auxquels ce bien est exposé sont disponibles sur le site Géorisques :www.georisques.gouv.fr
40.21 m²
3 706 €
4 m²
2
1
1
1
1 sur 3
2012
Sud
1
Oui
Oui
Oui (56 lots)
Consommations énergétiques
Logement économe
105
Logement énergivore (kWhEP/m2/an)
Émissions de gaz à effet de serre
Faible émission de GES
15
Forte émission de GES(kgeqCO2/m2/an)
Contact WAH Saint-Gély-du-Fesc
Contacter gratuitement à l'aide du formulaire ci-dessous.