Quartier Passy - La Muette. Vente en Nue Propriété
Dans une résidence 'Art-Déco' de 1931 à l'architecture sobre et élégante, un appartement de 4 pièces en étage élevé.
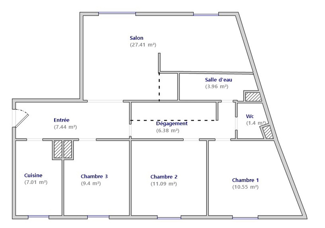
De beaux volumes pour cet appartement d'apparat de 130 m² à rénover. Une vaste galerie d'entrée et son vestibule, un séjour double en exposition Sud/Est, une salle-à-manger, une chambre, une cuisine indépendante avec une entrée de service, une salle-de-bain, de nombreux placards et dressings. Une cave. Le plan de base laisse envisager la création d'une à deux chambres supplémentaires. Nous vendons une 'Nue propriété'. Le quartier résidentiel et familial est équidistant de la rue de Passy et ses nombreux commerces, et le Trocadéro. L'infrastructure des transports est parfaite (ligne 6, RER C La Muette sont à 500 m). Le gardien est à demeure. Deux ascenseurs dont un de service.
Honoraires à la charge du vendeur. Dans une copropriété de 26 lots. Aucune procédure n'est en cours. Classe énergie E, Classe climat E Montant estimé des dépenses annuelles d'énergie pour un usage standard : entre 3250.00 € et 4400.00 € sur les années 2021, 2022 et 2023 (abonnements compris). Les informations sur les risques auxquels ce bien est exposé sont disponibles sur le site Géorisques : georisques.gouv.fr.
Bien présenté par Agences de France par délégation.
Agences de France ? SIREN : 899413603 ? Titulaire de la carte T : 29012021000000009 non habilité à percevoir des fonds
130 m²
6 000 €
39 m²
4
1
1
1
1
5 sur 8
1931
Équipée
Sud
Est
Oui
Oui
Consommations énergétiques
Logement économe
314
Logement énergivore (kWhEP/m2/an)
Émissions de gaz à effet de serre
Faible émission de GES
69
Forte émission de GES(kgeqCO2/m2/an)
Contact Marie COMERMAN
Contacter gratuitement à l'aide du formulaire ci-dessous.