Villa contemporaine d'exception Aix En Provence - Puyricar
Aix-en-Provence 13090
0
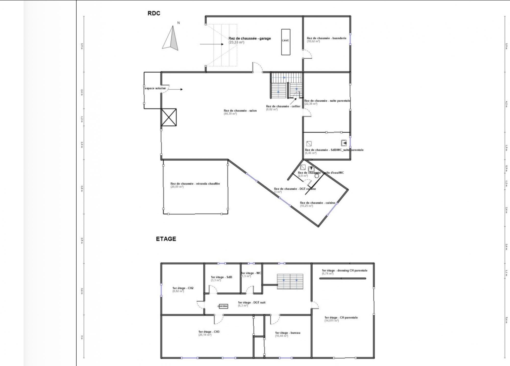
Dans l'un des secteurs les plus recherchés entre d'Aix-en-Provence et Puyricard, découvrez cette villa entireemnt rénonvée et repensée par une architecte d'interieur, implantée sur un terrain clos et paysagé de 1 400 m2, offrant calme, confort et prestations de standing. Une maison pensée pour le bien-être et la lumière Développant environ 191 m2 habitables, la villa séduit dès l'entrée par ses volumes généreux et sa circulation fluide. Au rez-de-chaussée, vous trouverez :
Une entrée accueillante ouvrant sur une vaste pièce de vie baignée de lumière,
Une cuisine moderne avec îlot central, ouverte sur l'espace salle à manger,
Un salon chaleureux avec cheminée, idéal pour les moments en famille,
Une suite parentale offrant intimité et confort, avec dressing et salle d'eau privative.
WC Séparé
À l'étage :
Une suite junior avec salle d'eau et WC
Une chambre avec dressing,
Un bureau pouvant faire office de quatrième chambre,
Une salle d'eau indépendante et WC
Extérieurs & prestations premium
Le jardin, entièrement aménagé, a été conçu pour profiter pleinement de la douceur provençale :
Piscine élégamment intégrée,
Terrain de pétanque,
Espaces détente et repas en extérieur.
Côté équipements :
Climatisation gainable,
Garage fermé,
Buanderie, cave à vin,
Dépendance aménagée (salle de sport / bureau / espace loisirs),
Double vitrage, vidéophone, finitions soignées.
Un emplacement privilégié
Située dans un environnement résidentiel prisé, cette villa offre un équilibre parfait entre tranquillité et proximité des commodités, à seulement quelques minutes du centre d'Aix-en-Provence.
Le bien idéal pour...
Une famille à la recherche d'une résidence principale confortable, ou des acquéreurs souhaitant une résidence secondaire haut de gamme, clé en main, sans travaux.
191 m²
6 780 €
1400 m²
8
4
1
2
3
31/12/2025
1940
Sud
10
1
Oui
Oui
Oui
Oui
Oui
Consommations énergétiques
Logement économe
81
Logement énergivore (kWhEP/m2/an)
Émissions de gaz à effet de serre
Faible émission de GES
2
Forte émission de GES(kgeqCO2/m2/an)
Contact Ribero
Contacter gratuitement à l'aide du formulaire ci-dessous.