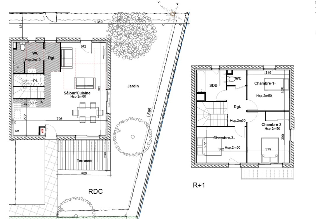
AM2871 - COMMUNAY (69360) / 25 Min Sud Lyon (69) L'agence SIT Immobilier vous propose à la vente cette superbe villa neuve (T5) d'une surface de 107,10 m2, située dans le hameau Les Pins, à seulement 25 minutes au sud de Lyon. Les atouts de cette villa : Un cadre verdoyant et une vue imprenable : Traversante et exposée Est/Ouest, cette villa offre une luminosité exceptionnelle et une vue dégagée sur les Alpes et la campagne environnante. Un espace de vie spacieux et convivial : Profitez d'une grande pièce de vie baignée de lumière, avec cuisine ouverte sur le séjour, donnant sur la grande terrasse de 43m2, idéale pour vos moments en famille ou entre amis. Des prestations haut de gamme :
Cuisine ouverte à aménager selon vos envies. Salle de bains au rez-de-chaussée et salle d'eau moderne à l'étage avec sèche-serviettes, double vasques et WC suspendus indépendants à chaque niveau. Pompe à chaleur Air/Eau avec plancher chauffant, climatisation prête à raccorder et menuiseries double vitrage Alu/PVC pour un confort optimal.
Un extérieur privé et apaisant : La villa dispose d'une terrasse, avec baie vitrée et son BSO orientables, d'un jardin privatif clôturé et de 2 places de stationnement couvertes. un écrin de modernité et de confort Frais de notaire réduits et garanties décennales incluses. Située à proximité immédiate des commodités (commerces, écoles, pôle santé) et des grands axes routiers (A7, A46, A47), cette villa combine calme et accessibilité. Ne manquez pas cette opportunité unique ! Contactez SIT Immobilier au 04 74 78 33 33 pour plus d'informations ou pour programmer une visite. Prix affiché : Honoraires d'agence inclus à la charge du vendeur. Informations sur les risques : Retrouvez toutes les informations concernant les risques potentiels de ce bien sur le site Géorisques : www.georisques.gouv.fr.
107 m²
3 299 €
36 m²
150 m²
5
4
1
1
2
2025
1
Contact
Contacter gratuitement à l'aide du formulaire ci-dessous.