Honoraires à la charge de l'acquéreur (Prix hors honoraires : 969000 euros).
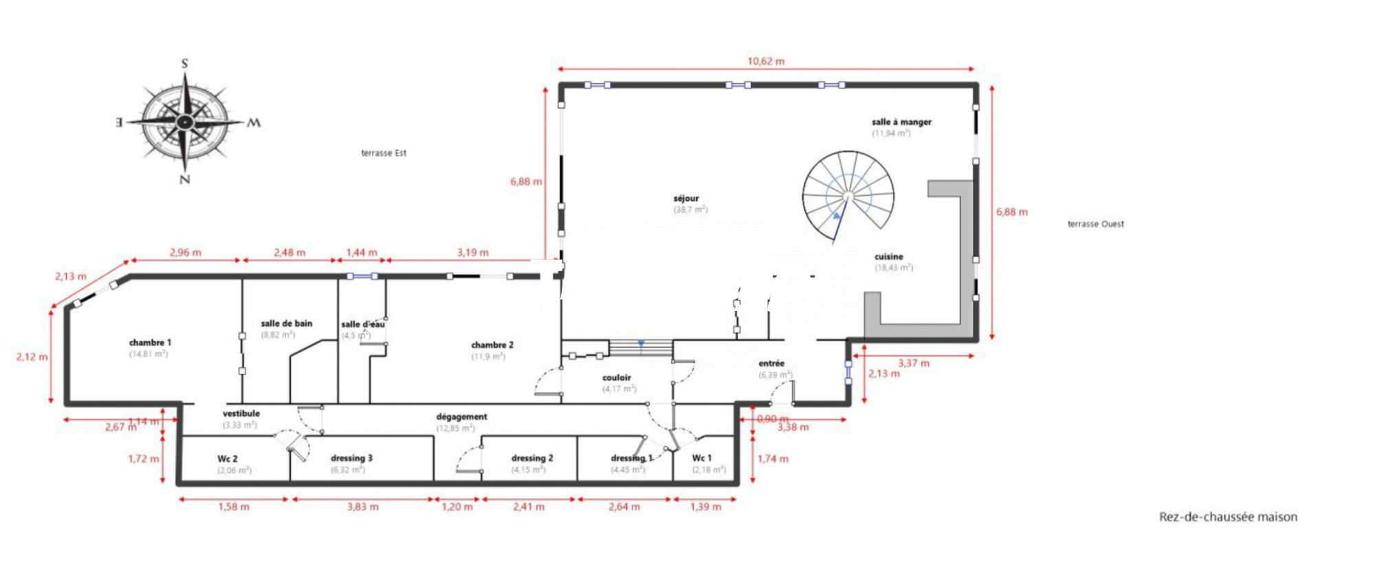
Charmante villa T5/6 à La Ciotat - Confort et Calme et absolu En bout d'impasse, cette villa spacieuse de 190 m² offre un cadre de vie paisible et enchanteur. Implantée sur une parcelle piscinable de 1000 m², elle allie confort, luminosité et qualité des prestations. La villa s'organise au Rez-de-chaussée : autour d'une entrée accueillante , d'un vaste séjour-salon de 45 m² agrémenté d'une cheminée/insert, ouvrant sur une spacieuse TERRASSE une cuisine entièrement équipée et son arrière-cuisine cellier, avec point d'eau, une chambre confortable une salle de bains avec douche et baignoire Un wc indépendantÀ l'étage : Trois belles chambres, dont deux ouvrant sur une TERRASSE offrant une magnifique VUE MER, un grand dressing, une salle d'eau neuve, Un wc indépendant Atouts supplémentaires Garage double de 52 m², offrant des possibilités d'aménagement Une cave idéale pour le stockage Les propriétaires ont choisi de ne pas réaliser de piscine mais le terrain est piscinable pour profiter pleinement des beaux jours Le chauffage et l'eau chaude sont produits par une pompe à chaleur neuve Calme absolu, qualité de vie exceptionnelle et vue mer à l'étage : une opportunité rare à ne pas manquer !
Contactez-nous dès maintenant pour organiser une visite et découvrir tout le charme de cette propriété unique.
Honoraires inclus de 3.1% TTC à la charge de l'acquéreur. Prix hors honoraires 969 000 . Classe énergie C, Classe climat C Montant moyen estimé des dépenses annuelles d'énergie pour un usage standard, établi à partir des prix de l'énergie de l'année 2022 : entre 1620.00 et 2240.00 . Les informations sur les risques auxquels ce bien est exposé sont disponibles sur le site Géorisques : georisques.gouv.fr.
Villa
190 m²
5 258 €
45 m²
1058 m²
6
4
1
1
2 (séparés)
3.1 %
10.00 € / mois
2000
Sud
Est
Oui
3
2
2
Oui
Consommations énergétiques
Logement économe
142
Logement énergivore (kWhEP/m2/an)
Émissions de gaz à effet de serre
Faible émission de GES
22
Forte émission de GES(kgeqCO2/m2/an)
Contact SAJATIM
Contacter gratuitement à l'aide du formulaire ci-dessous.