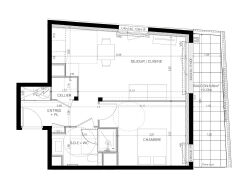
VITRE - Appartement 2 pièces 44.33m²- rez de chaussée - ascenseur - balcon 8.60m² - stationnement en sous-sol sécurisé. A 650 m de la gare, proche des commerces et commodités, dans une résidence contemporaine, aux dernières normes, situé au rez-de-chaussée avec ascenseur, appartement 2 pièces de 44.33m² comprenant : une entrée avec placard, séjour salon avec cuisine ouverte donnant accès à un balcon de 8.60m², une chambre, une salle d'eau avec wc, cellier. Stationnement en sous-sol sécurisé. Prix promoteur - frais de notaire réduits - Les informations sur les risques auxquels ce bien est exposé sont disponibles sur le site Géorisques : www.georisques.gouv.fr Copropriété de 32 lots - dont 30 lots habitation. (Pas de procédure en cours). Charges annuelles : 633 euros.