VITRE - Appartement 2 pièces 45 m² - terrasse de 6.60m² - rez-de-chaussée - ascenseur - stationnement
Vitré 35500
0
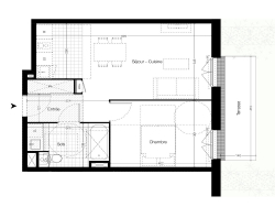
VITRE - Appartement 2 pièces 45 m² - terrasse de 6.60m² - rez-de-chaussée - ascenseur - stationnement en sous-sol sécurisé. Non loin du centre de vitré, à proximité des commerces, commodités, des équipements sportifs et culturels, dans une résidence contemporaine aux dernières normes, appartement de 2 pièces de 45m² avec terrasse de 6.60m² en rez-de-chaussée comprenant : une entrée avec placard, un séjour salon avec cuisine ouverte, donnant accès à l'extérieur, une chambre, une salle de bains avec wc. Stationnement en sous-sol sécurisé. Prix promoteur - frais de notaire réduits - normes RT2020. Les informations sur les risques auxquels ce bien est exposé sont disponibles sur le site Géorisques : www.georisques.gouv.fr. Photos non contractuelles - Suggestions d'aménagements Copropriété de 38 lots - dont 38 lots habitation. (Pas de procédure en cours). Charges annuelles : 648 euros.