VOIRON - Duplex charmant de 118 m² rénové avec gout + terrass
Voiron 38500
0
Honoraires à la charge du vendeur.
Coublevie, limite VOIRON
Vous souhaitez vous installer aux portes de Voiron, dans un secteur attractif et recherché pour sa qualité de vie ? Posséder un appartement distingué et rénové, ou vous n'aurez plus qu'à poser vos valises ? Alors ce bien est fait pour vous !
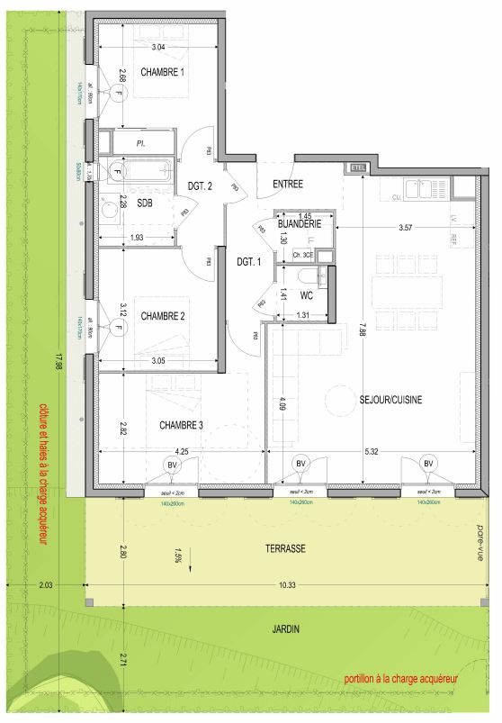
Sublime appartement traversant de type T5 de 118 m² loi Carrez - 122m² au sol.
Vendu avec 2 places de stationnement Au dernier étage d'un petit immeuble, personne d'autre sur votre palier
En Duplex, l'appartement est composé de la façon suivante :
*Entrée avec placard *Grande pièce à vivre de 54 m², bien aménagée avec cuisine équipée, coin repas et espace salon. Les pièces donnent sur une grande terrasse de 60 m², exposée Sud-Ouest, parfaitement aménagée. Idéal pour recevoir. *Buanderie *2 Chambres au RDC, dont l'une avec dressing *Salle d'eau avec double vasque et WC *A l'étage, on retrouve deux chambres, avec charpente apparente Parfait pour des enfants *Salle de bains avec douche également *WC séparé
De belles prestations vous attendent à l'intérieur Chauffage individuel électrique, climatisation réversible pour votre confort en toute saison, staff au plafond, cuisine ultra équipée, double vitrage PVC/BOIS, bonne isolation..
Copropriété bénévole, faibles charges
Vendu avec une cave
Venez vite découvrir cette pépite aux multiples atouts Gatien MESTRALLET au o6 61 92 81 25
Honoraires à la charge du vendeur. Dans une copropriété de 3 lots. Aucune procédure n'est en cours. Classe énergie D, Classe climat B Montant estimé des dépenses annuelles d'énergie pour un usage standard : entre 2080.00 et 2880.00 sur les années 2021, 2022 et 2023 (abonnements compris). Les informations sur les risques auxquels ce bien est exposé sont disponibles sur le site Géorisques : georisques.gouv.fr.