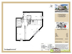
Entre le tramway T6 'Parc André Malraux' et 'Centre de Châtillon' qui se trouvent à 4 minutes à pied et à proximité du centre-ville, dans une résidence neuve tout juste livrée, votre agence Logis Conseil vous propose un appartement 3 pièces d'environ 62m² offrant une entrée avec placards, un séjour, une cuisine à aménager, deux chambres, une salle de bains et toilettes PMR séparés. Un parking en sous-sol et une cave. Appartement jamais occupé, en parfait état et lumineux dans lequel vous pourrez profiter des frais de notaires réduits. PLANS, GEOLOCALISATION PRECISE ET VIDEO DISPONBILES SUR LE SITE DE NOTRE AGENCE !
Retrouvez nous sur Instagram @logisconseilimmobilier et Youtube @logisconseil2859 !
Honoraires à la charge du vendeur. Dans une copropriété de 46 lots. Quote-part moyenne du budget prévisionnel 1 432,16 /an. Aucune procédure n'est en cours. Classe énergie B, Classe climat B Montant moyen estimé des dépenses annuelles d'énergie pour un usage standard, établi à partir des prix de l'énergie de l'année 2023 : entre 457.00 et 619.00 . Les informations sur les risques auxquels ce bien est exposé sont disponibles sur le site Géorisques : georisques.gouv.fr. Ce bien vous est proposé par un agent commercial (Entreprise individuelle).