Honoraires à la charge de l'acquéreur (Prix hors honoraires : 97092 euros).
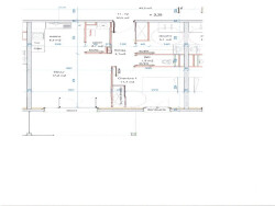
Dans résidence de standing en construction aux portes de Pau sur la commune de Lescar, agréable T2 de 50.50 m2 (lot 11) avec terrasse, exposé est, situé dans une petite copropriété, dans un secteur calme.. Il se compose d'une cuisine à équiper et aménager, ouverte sur séjour , une chambre ,une salle d'eau et toilette séparé ainsi qu'un cellier. L'appartement est vendu en plateau (travaux de second oeuvre à la charge de l'acheteur)avec une place de parking . Possibilité de le vendre travaux finis au prix de 157450 euros. Idéalement situé par rapport aux commodités et axes routiers importants..PRECOMMERCIALISATION 2026 . A voir sans tarder. Taxe locale d'équipement de 4300 euros. Provision association syndicale 300 euros.
Honoraires inclus de 7.22% TTC à la charge de l'acquéreur. Prix hors honoraires 97 092 . DPE en cours. Les informations sur les risques auxquels ce bien est exposé sont disponibles sur le site Géorisques : georisques.gouv.fr.
51 m²
2 041 €
2
1
1 sur 1
7.22 %
2022
Contact CLAUDE ESCOFET
Contacter gratuitement à l'aide du formulaire ci-dessous.