Appartement 4 pièces de 90.75 m2 quartier Trespoey
Pau 64000
0
Honoraires à la charge du vendeur.
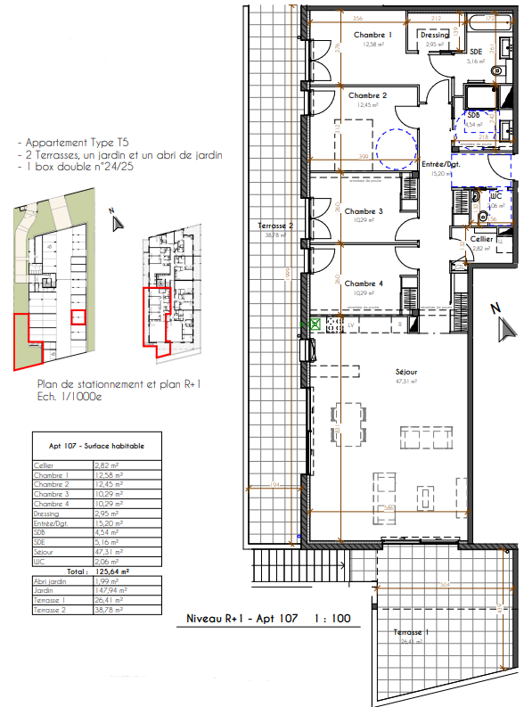
Appartement situé au 2ème étage d'une résidence de charme située dans un parc centenaire du quartier calme et très recherché Trespoey, à quelques minutes à pied des lycées, commerces et services. L'appartement offre de larges ouvertures pour une belle luminosité naturelle, une isolation acoustique renforcée, une terrasse généreuse et une place de stationnement. Cette nouvelle résidence disponible au 1er trimestre 2026 offre plusieurs types d'appartements, du T2 au T4, avec des agencements différents, et la possibilité d'avoir une terrasse ou un jardin. Idéal pour développer votre patrimoine, que ce soit pour un investissement locatif ou résidentiel. Les informations sur les risques auxquels ce bien est exposé sont disponibles sur le site Géorisques : www.georisques.gouv.fr
90.75 m²
4 397 €
10 m²
33 m²
4
3
1
1
2
2 sur 3
Nord
1 (10 m²)
2
Contact SAS Idron Immobilier
Contacter gratuitement à l'aide du formulaire ci-dessous.