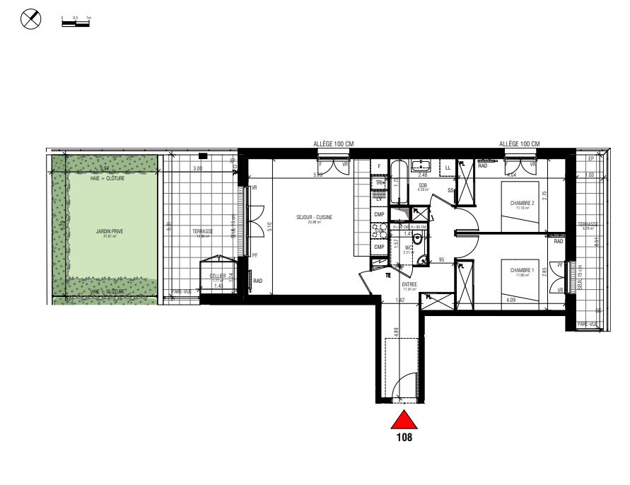
Location à Cergy d'un appartement de particulier disponible immédiatement. Ce meublé possède 4 chambres et est à louer 1.930 euros par mois.
Avantages du logement :
- Stationnement
- Grand séjour
- Cuisine équipée
- Cuisine indépendante
- Balcon
- Transport
- Salles de bain multiples
- Proche commerce
- Baignoire
- Cave
- Sans vis-à-vis
Ce propriétaire utilise LocService pour sélectionner ses futurs locataires. Pour proposer directement votre candidature pour ce logement ET toutes les locations conformes à votre recherche, il suffit de vous inscrire sur LocService. Les propriétaires vous contactent directement et les locations sont certifiées sans frais d'agence.
Comment ça marche ?
1/ Vous décrivez votre location idéale sur LocService
2/ Votre candidature est transmise aux propriétaires concernés
3/ Les propriétaires vous contactent directement.
Vous réglez une seule fois 34 euros (29 euros pour les étudiants) pour toute la durée de votre recherche. Sans abonnement - Sans prélèvement - Sans commission.
Depuis sa création en 2005, LocService a accompagné plus de 2,8 millions de particuliers. Pourquoi pas vous ?
100 m²
5
4
1
Oui
Oui
Consommations énergétiques
Logement économe
330
Logement énergivore (kWhEP/m2/an)
Émissions de gaz à effet de serre
Faible émission de GES
100
Forte émission de GES(kgeqCO2/m2/an)
Contact LOCSERVICE
Contacter gratuitement à l'aide du formulaire ci-dessous.