13008 MARSEILLE CARRÉ D'OR PARADIS / PÉRIER T3/4 de 103 m² Dernier étage Terrasse Balcon Garage fermé Chambre de bonne Cave
EG AGENCY vous propose à la vente, au coeur du très recherché secteur PARADIS / PERIER, ce superbe appartement traversant de 103 m², situé au 4e et dernier étage d'un immeuble bien entretenu au sein d'une petite résidence fermée et sécurisée de 8 lots. Cet appartement saura vous séduire par ses volumes, sa luminosité et son calme absolu, tout en bénéficiant d'une proximité immédiate des commerces, écoles et transports (rue Paradis, métro, bus).
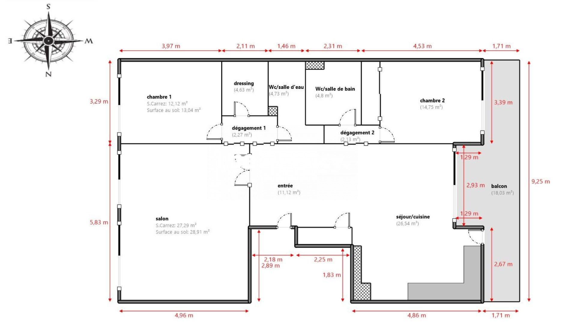
Il se compose de : Une entrée Un vaste séjour / salle à manger lumineux ouvrant sur un balcon sans vis-à-vis Une cuisine équipée donnant sur une terrasse au calme côté jardin Une suite parentale d'environ 31 m² avec dressing, bureau et salle d'eau Une seconde chambre Une salle de bains avec WC Possibilité de créer une 3e chambre (T4).
Les + du bien : Garage fermé de 19 m² (SUV + deux-roues) Chambre de bonne indépendante de 10m2 avec douche et WC, idéale pour étudiant ou location Cave Double vitrage Porte blindée, alarme Interphone, digicode, visiophone Chauffage individuel gaz Charges : environ 135 / mois (comprenant l'entretien des parties communes, l'entretien des espaces verts, l'eau froide, le fonds de travaux loi ALUR ainsi que les honoraires du syndic).
Taxe foncière : 2 500 /An.
Bien rare à la vente dans ce secteur recherché.
Visite virtuelle 3D disponible sur notre site internet : Www . egagency .fr
Pour plus d'informations ou organiser une visite, contactez nous :
Honoraires à la charge du vendeur. Dans une copropriété de 1000 lots. Aucune procédure n'est en cours. Classe énergie D, Classe climat D Montant estimé des dépenses annuelles d'énergie pour un usage standard : entre 167.00 et 168.00 sur les années 2021, 2022 et 2023 (abonnements compris). Les informations sur les risques auxquels ce bien est exposé sont disponibles sur le site Géorisques : georisques.gouv.fr.
103 m²
6 214 €
4
3
1
1
2
4 sur 4
135.00 € / mois
Oui
1948
1
Oui
1
Oui
Oui (1000 lots)
Consommations énergétiques
Logement économe
133
Logement énergivore (kWhEP/m2/an)
Émissions de gaz à effet de serre
Faible émission de GES
40
Forte émission de GES(kgeqCO2/m2/an)
Contact Eythan GOURION
Contacter gratuitement à l'aide du formulaire ci-dessous.