Appartement T4 neuf 98 m2 avec terrasse à Andrézieux Bouthéo
Andrézieux-Bouthéon 42160
0
Honoraires à la charge du vendeur.
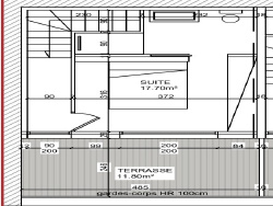
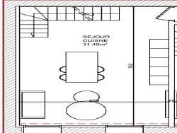
Homie-IMMO : Laurent Guillaumond, ([Coordonnées masquées], vous propose : Ce superbe appartement neuf en triplex de 98 m2 offrant de beaux volumes et une configuration idéale pour une famille. Il se compose d'une pièce à vivre de 33m2, de trois chambres, dont une suite parentale, une seconde salle de bain, deux WC et une magnifique terrasse tropézienne de 13 m2, parfaite pour profiter des beaux jours. Ce bien est proposé à la vente en plateau à 190 000 EUR ou entièrement fini à 260 000 EUR. Livraison prévue pour juillet 2026. Une opportunité rare à saisir pour personnaliser votre futur logement ou emménager dans un espace clé en main. Nous contacter pour toutes autres informations Votre conseiller joignable 6/7. I: . La présente annonce immobilière a été rédigée sous la responsabilité éditoriale de Mr Laurent Guillaumond, Agent Commercial mandataire en immobilier immatriculé au Registre Spécial des Agents Commerciaux (RSAC) du Tribunal de Commerce de SAINT ETIENNE sous le numéro 522 472 158. Référence annonce : 20 Date de réalisation du diagnostic : 21/02/2022 Les honoraires sont à la charge du vendeur
Triplex
98 m²
1 939 €
33 m²
4
3
2
2
1 sur 3
01/07/2026
2026
Ouest
Oui
1
Oui
Oui
Oui (5 lots)
Contact GUILLAUMOND
Contacter gratuitement à l'aide du formulaire ci-dessous.