Nous sommes ravis de vous faire découvrir cet appartement de 37m² idéalement situé en centre ville du Coudray.
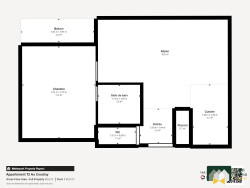
DECOUVRE UN APPARTEMENT AU 2EME ETAGE DECOMPOSE COMME SUIT : - Une entrée avec placard - Un wc indépendant - Un salon lumineux - Une cuisine ouverte équipée et aménagée - Une chambre avec balcon - Une salle de bains.
COTE CONFORT : - Double vitrage PVC, - Un stationnement en sous terrain - Ballon d'eau chaude neuf - Très bonne isolation de l'appartement.
L'EMPLACEMENT : Côté pratique, vous trouverez une école au pied de l'immeuble ainsi que toutes les commodités nécessaires au quotidien. Profitez également des services de santé et des lignes de bus à proximité.
À PROPOS DE LA COPROPRIETE : Résidence bien tenue, avec parties communes en bon état et aucun travaux votés. Les charges mensuelles sont paticulièrement basses ce qui est assez rare sur le marché : - Entretien des parties communes et extérieur - Charges ascenseur Le tout pour 56 par mois.
N'hésitez pas à contacter votre agent au Noeud Pap' pour obtenir plus d'informations et visiter cet appartement !
Honoraires à la charge du vendeur. Dans une copropriété de 72 lots. Quote-part moyenne du budget prévisionnel 678 /an. Aucune procédure n'est en cours. Classe énergie D, Classe climat A Montant estimé des dépenses annuelles d'énergie pour un usage standard : entre 640.00 et 920.00 sur les années 2021, 2022 et 2023 (abonnements compris). Les informations sur les risques auxquels ce bien est exposé sont disponibles sur le site Géorisques : georisques.gouv.fr.
37.03 m²
3 214 €
3 m²
16 m²
2
1
1
1 (séparé)
2 sur 3
56.00 € / mois
2008
Est
1 (3 m²)
Oui
1
Oui
Oui (72 lots)
Consommations énergétiques
Logement économe
203
Logement énergivore (kWhEP/m2/an)
Émissions de gaz à effet de serre
Faible émission de GES
6
Forte émission de GES(kgeqCO2/m2/an)
Contact Théo VANDENDRIESSCHE
Contacter gratuitement à l'aide du formulaire ci-dessous.