Investissez avec ce 2 pièces de 37 m² avec parking, en plein centre-ville du Coudray, au pied des commerces, services de santé et transports. Cet appartement, situé dans une copropriété bien tenue et à très faibles charges, offre un solide potentiel locatif.
EN QUELQUES CHIFFRES - Rendement brut estimé : 5,4% - Valeur locative hors charges : 580/mois en location meublée - Taxe foncière : 636/an taxe d'enlèvement des ordures ménagères déduite - Charges de copropriété : 30,48/mois quote-part propriétaire-bailleur - Effort de trésorerie mensuel : 150/mois toutes charges déduites, prêt sur 25 ans, avec apport des frais de notaire - Travaux à prévoir : Aucun, appartement en excellent état
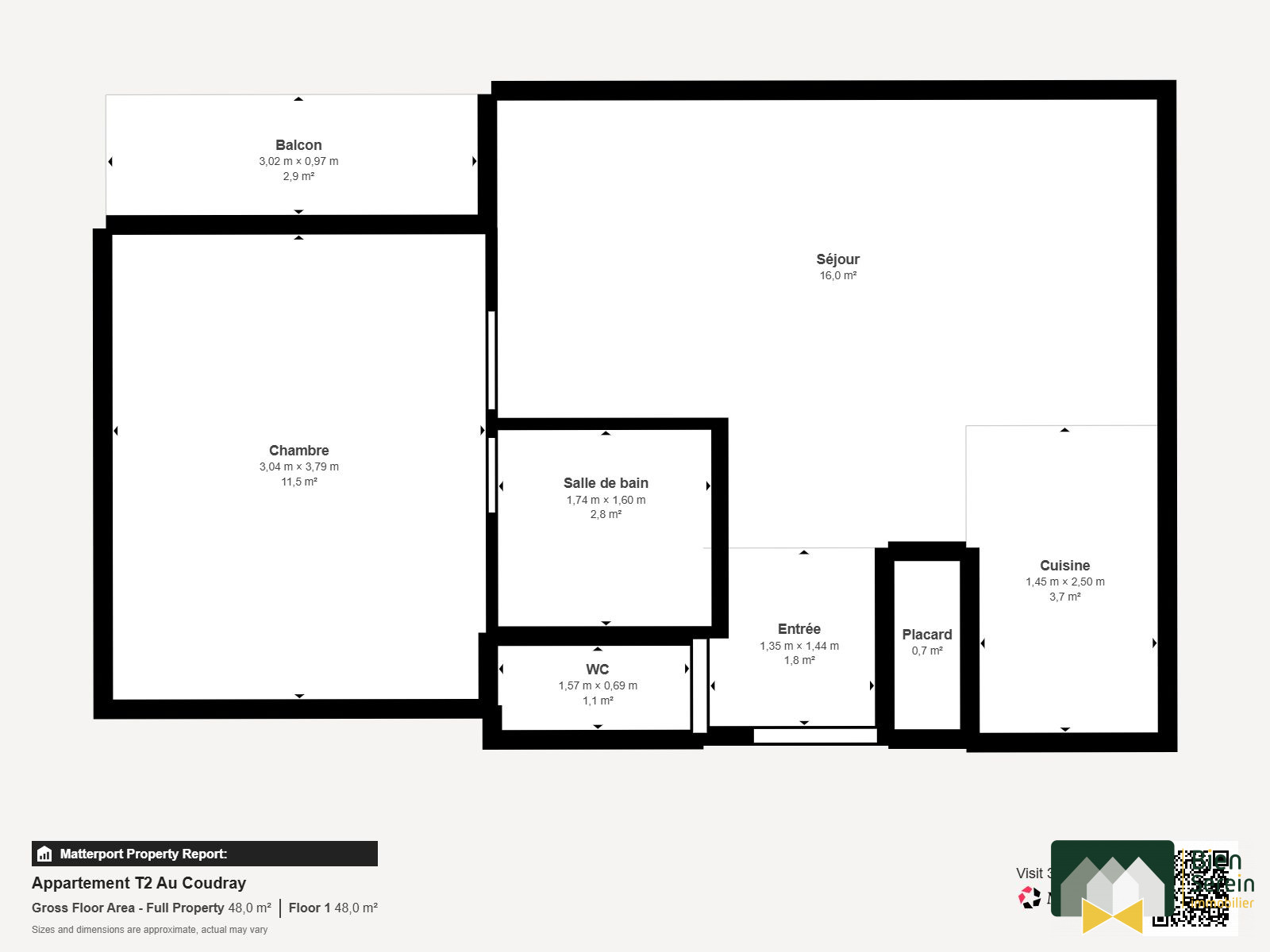
DESCRIPTION DU BIEN - Superficie totale : 37 m² - Entrée avec placard - Séjour lumineux avec cuisine ouverte aménagée et équipée - Chambre avec balcon - Salle de bains -WC indépendant
COTE CONFORT : - Stationnement en sous-sol - Double vitrage PVC - Ballon d'eau chaude récent - Très bonne isolation - Résidence avec ascenseur et parties communes entretenues
EMPLACEMENT : Au pied de l'immeuble : école, commerces et services du quotidien. Transports en commun à proximité immédiate, accès rapide à Chartres et à ses zones d'activités.
Cet appartement, avec son emplacement recherché et ses faibles charges, constitue une opportunité d'investissement rare sur le marché.
Contactez votre agent au Noeud Pap' pour organiser une visite ! Découvrez nos autres biens dédiés à l'investissement locatif sur notre site, dans l'onglet « Investir ».
Honoraires à la charge du vendeur. Dans une copropriété de 72 lots. Quote-part moyenne du budget prévisionnel 678 /an. Aucune procédure n'est en cours. Classe énergie D, Classe climat A Montant estimé des dépenses annuelles d'énergie pour un usage standard : entre 640.00 et 920.00 sur les années 2021, 2022 et 2023 (abonnements compris). Les informations sur les risques auxquels ce bien est exposé sont disponibles sur le site Géorisques : georisques.gouv.fr.
37.03 m²
3 214 €
3 m²
16 m²
2
1
1
1 (séparé)
2 sur 3
30.48 € / mois
2008
Est
1 (3 m²)
Oui
1
Oui
Oui (72 lots)
Consommations énergétiques
Logement économe
203
Logement énergivore (kWhEP/m2/an)
Émissions de gaz à effet de serre
Faible émission de GES
6
Forte émission de GES(kgeqCO2/m2/an)
Contact Fabien HEMERY
Contacter gratuitement à l'aide du formulaire ci-dessous.