Situé au coeur du quartier animé et très recherché de Peixotto à Talence, ce bien immobilier neuf s'intègre parfaitement dans un environnement combinant vitalité citadine et sérénité résidentielle. Édifiée en petite copropriété à taille humaine de 15 logements, la résidence offre une proximité immédiate avec les services du quotidien, les établissements scolaires, ainsi que le réseau de transports (ligne de tramway à quelques pas). L'ensemble bénéficie d'un cadre verdoyant et harmonieux, caractéristique de ce secteur prisé de la métropole bordelaise.
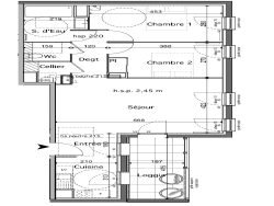
Ce trois-pièces traversant séduit par sa vaste pièce de vie de 34 m², baignée de lumière grâce à une orientation plein sud, parfaite pour bénéficier d'un ensoleillement optimal tout au long de la journée. Cet espace s'ouvre sur une terrasse découverte végétalisée de 9 m², véritable coin de verdure propice aux moments de détente et de convivialité.
Le coin nuit se compose de deux chambres confortables, pensées pour le repos. Un cellier bien agencé avec arrivée pour lave-linge vient faciliter le rangement. Une salle d'eau moderne, habillée de faïence jusqu'au plafond, et des toilettes indépendantes complètent l'ensemble avec praticité.
Au rez-de-chaussée de l'immeuble, deux stationnements privatifs et un local à vélos sont à disposition pour un confort au quotidien.
- Frais de Notaire réduit - Garanties - RT 2012 - Exonération de taxe Foncière - Disponible - ...
Honoraires à la charge du vendeur. Dans une copropriété de 15 lots. Aucune procédure n'est en cours. DPE en cours. Les informations sur les risques auxquels ce bien est exposé sont disponibles sur le site Géorisques : georisques.gouv.fr.