Implanté au coeur du secteur vivant et très convoité de Peixotto à Talence, ce logement flambant neuf s'inscrit harmonieusement dans un environnement mêlant animation urbaine et quiétude résidentielle. Niché au sein d'une résidence intimiste composée de seulement 15 unités, il bénéficie d'un accès rapide aux commodités du quotidien, aux établissements scolaires ainsi qu'au réseau de transports en commun (tram à proximité). L'ensemble offre un cadre de vie agréable et arboré, typique de ce quartier prisé de la rive gauche bordelaise.
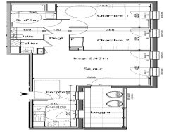
Cet appartement traversant séduit par sa généreuse pièce à vivre de 34m², largement ensoleillée grâce à son orientation plein sud, idéale pour profiter d'une luminosité naturelle constante. Cette dernière s'ouvre sur une belle terrasse végétalisée de 9m², véritable prolongement extérieur pour savourer des instants de détente en toute intimité. L'espace nuit comprend deux chambres accueillantes, pensées pour le calme et le confort. Un cellier fonctionnel avec raccordement pour machine à laver optimise les rangements. La salle d'eau contemporaine avec faïence toute hauteur ainsi que les toilettes séparées ajoutent praticité et bien-être au quotidien.
En rez-de-chaussée de l'immeuble, deux emplacements de stationnement privatifs et un local dédié aux vélos complètent les prestations.
- Frais de Notaire réduit - Garanties - RT 2012 - Exonération de taxe Foncière - Disponible - ...
Honoraires à la charge du vendeur. Dans une copropriété de 15 lots. Aucune procédure n'est en cours. DPE en cours. Les informations sur les risques auxquels ce bien est exposé sont disponibles sur le site Géorisques : georisques.gouv.fr.