Sous compromis : GRANDE TERRASSE - SUD - PARKINGS/TRAM/ASCENSEUR
Situé dans le quartier dynamique et prisé de Peixotto à Talence, cet appartement neuf s'intègre parfaitement dans un cadre alliant vie citadine et tranquillité résidentielle. Niché au sein d'une copropriété à taille humaine de 15 lots, il offre un accès aisé aux commerces, établissements scolaires et transports en commun (tramway) tout en bénéficiant de l'ambiance conviviale et verdoyante qui caractérise le secteur. Ce bien est une opportunité rare pour profiter d'un lieu de vie moderne dans l'un des quartiers les plus recherchés de la métropole bordelaise.
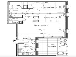
Cet appartement lumineux se distingue par sa grande pièce de vie de 34 m², baignée de lumière grâce à son exposition plein sud, idéale pour profiter de journées ensoleillées tout au long de l'année. Cette pièce s'ouvre sur une superbe terrasse arborée de 16 m², offrant un espace extérieur intime et agréable. Côté nuit, l'appartement dispose de deux chambres confortables, parfaitement conçues pour garantir repos et tranquillité. Un cellier pratique avec espace pour le lave linge complète l'espace de rangement, tandis qu'une salle de bain moderne et des toilettes indépendantes assurent confort et fonctionnalité au quotidien.
Enfin, en RDC de l'immeuble, sont à la disposition deux places de parkings privatives et un local à vélos.
- Frais de Notaire réduit - Garanties - RT 2012 - Exonération de taxe Foncière - Très Bientôt Disponible - ...
GRANDE TERRASSE - SUD - PARKINGS/TRAM/ASCENSEUR
Honoraires à la charge du vendeur. Dans une copropriété de 15 lots. Aucune procédure n'est en cours. DPE en cours. Les informations sur les risques auxquels ce bien est exposé sont disponibles sur le site Géorisques : georisques.gouv.fr.