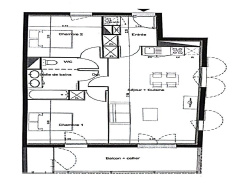
Floirac centre - T3 lumineux 65 m2 avec terrasse et parking Venez découvrir ce charmant appartement T3 de 65 m2, idéalement situé, offrant une agréable terrasse et un cadre de vie pratique au quotidien. Dès l'entrée, un dégagement vous mène vers un lumineux séjour de 28 m2, ouvert sur la cuisine, créant un espace de vie convivial et chaleureux. Cette pièce s'ouvre directement sur une belle terrasse de 14 m2, parfaite pour profiter des beaux jours, recevoir vos proches ou simplement vous détendre. L'espace nuit se compose de deux chambres confortables ainsi que d'une salle de bains fonctionnelle, offrant un agencement idéal pour un couple, une petite famille ou un investissement. Pour votre confort, une place de parking en sous-sol complète ce bien. Vous apprécierez particulièrement la proximité immédiate du centre-ville, des transports, des commerces et de toutes les commodités, garantissant un cadre de vie pratique et agréable au quotidien. Pour tous renseignements veuillez contacter Linda BRIGE au 06 31 55 72 62 agent commercial de la SAS Fanny Dupain Immobilier immatriculée au RSAC de Bordeaux sous le numéro 901363846.
65 m²
3 615 €
3
2
2013
Oui
Oui (96 lots)
Consommations énergétiques
Logement économe
81
Logement énergivore (kWhEP/m2/an)
Émissions de gaz à effet de serre
Faible émission de GES
15
Forte émission de GES(kgeqCO2/m2/an)
Contact Iad France - Linda BRIGE
Contacter gratuitement à l'aide du formulaire ci-dessous.