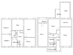
Au calme d'une impasse et idéal pour un projet de rénovation. Cette maison offre un beau volume de 119 m2 habitables sur une parcelle de 573 m2 (terrain piscinable). Le bien se compose de : - Une maison de 119 m2 (agencement à redistribuer). - Un garage de 19 m2 et un atelier de 13 m2. - Terrasse à l'étage de 15m2
L'état général vous fera partir d'une page blanche, vous permettra de repenser entièrement l'espace et de choisir vos prestations.
Les points forts : - Beau potentiel de valorisation après travaux. - Jardin bien proportionné laissant beaucoup d'espaces. - double accès sur la parcelle
A proximité de toutes les commodités (écoles, commerces, bus).
Un audit énergétique détaillé est à votre disposition. Il chiffre précisément les optimisations possibles pour gagner en confort et réduire vos factures.
Prix du bien : 399 000 EUR Honoraires inclus à la charge du vendeur. Taxe foncière : 2400 euros Montant estimé des dépenses annuelles d'énergie pour un usage standard : entre 3800EUR et 5180EUR TTC / an. Date de référence des prix de l'énergie pour établir cette estimation : 12/01/2026. Les informations sur les risques auxquels ce bien est exposé sont disponibles sur le site Géorisques : www.georisques.gouv.fr ImmoMAPI
119 m²
3 353 €
30 m²
573 m²
5
4
1
1
2
1966
1
1
Oui
Consommations énergétiques
Logement économe
265
Logement énergivore (kWhEP/m2/an)
Émissions de gaz à effet de serre
Faible émission de GES
74
Forte émission de GES(kgeqCO2/m2/an)
Contact Maurin Immobilier
Contacter gratuitement à l'aide du formulaire ci-dessous.