Maison de 5 pièces avec Jardin Coeur de Lagny-sur-Marne, Pr
Lagny-sur-Marne 77400
0
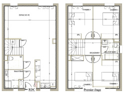
Découvrez votre futur havre de paix à deux pas des rives de la Marne ! Au coeur d'un quartier recherché et paisible, cette maison individuelle de 5 pièces de 101m2 vous séduit par son espace généreux, sa luminosité exceptionnelle et son jardin privatif. Une maison conçue pour votre bien-être Espace de vie ouvert et lumineux : -Un séjour spacieux de 43 m2 baigné de lumière naturelle, grâce à de grandes fenêtres donnant sur le jardin. -4 chambres confortables : Deux chambres de plus de 10 m2 chacune, une troisième avec espace de rangement, et une quatrième idéale pour un bureau ou une chambre d'amis. - Cuisine fonctionnelle et moderne : Équipée et ouverte sur le séjour, - Salle de bains et salle d'eau : Des espaces bien pensés pour le confort de toute la famille. Jardin privatif de 101m2 et terrasse : Un écrin de verdure pour profiter des beaux jours en toute sérénité. Prestations haut de gamme : Carrelage en grès émaillé, parquet stratifié, VMC hygroréglable, et isolation optimale pour un confort toute l'année. Un quartier où il fait bon vivre À Lagny-sur-Marne, profitez d'un cadre de vie préservé, entre nature et dynamisme urbain : Proximité des commodités : Écoles, commerces et transports à moins de 5 minutes. Accès facile à Paris : À 30 minutes en voiture ou en transports (ligne P du Transilien, gare de Lagny-Thorigny). Environnement verdoyant : Promenades le long de la Marne, parcs et espaces naturels à proximité. Vie locale animée : Marchés, restaurants et activités culturelles pour toute la famille. Une opportunité rare à saisir Cette maison, certifiée NF Habitat HQE(TM), est synonyme de qualité de vie, de performance énergétique et de durabilité. Elle est idéale pour les familles en quête d'un cadre chaleureux, fonctionnel et proche de la nature. Prêt pour le coup de coeur ? Contactez L'Atelier du 9 pour découvrir les plans détaillés et réserver votre visite de ce bien Frais de notaire réduits Pas de frais d'agence Photos non contractuelles
101 m²
4 149 €
202 m²
5
4
1
1
1
2
1
Consommations énergétiques
Logement économe
71
Logement énergivore (kWhEP/m2/an)
Émissions de gaz à effet de serre
Faible émission de GES
10
Forte émission de GES(kgeqCO2/m2/an)
Contact AMAR Denis
Contacter gratuitement à l'aide du formulaire ci-dessous.