A vendre en exclusivité, cette grande maison de ville en plein centre de la commune de Saint-Genis-Laval.
Actuellement sous la forme d'un plateau de 185 m2 sur 3 niveaux, viabilisé en 2024 et sous décennale, je vous propose ce bien avec valorisation.
La valorisation c'est quoi ? C'est vous accompagner dans la réalisation de votre projet, en commençant par vous rassurer dans le potentiel du bien.
- Prix de vente en l'état sans travaux : 480 000EUR - Budget travaux pour le projet proposé : 180 000EUR (réalisation du projet non obligatoire lors de l'achat)
- DESCRIPTION DU BIEN EN L'ETAT:
- RDC 70 m2 comprenant entrée et garage - 1er étage 80 m2 - 2ème étage 35 m2 - Terrasse au dernier étage: 20 m2
Kevin Josserand, architecte d'intérieur en activité et conseillé indépendant en immobilier a lancé un nouveau concept: Valoriser le bien à la vente en créant un projet réalisable et budgétisé. L'objectif est simple: révéler le potentiel du bien dès la mise en vente afin de créer une valeur ajoutée et aider le vendeur à vendre plus vite, mais aussi rassurer et accompagner l'acquéreur de la vente jusqu'à la réalisation du projet.
- PROJET PROPOSÉ ET CHIFFRÉ PAR DES PROFESSIONNELS:
Le parti pris du projet proposé est de créer une maison atypique et non des moins fonctionnelle, qui se démarque par sa configuration et ses surfaces. Si vous souhaitez une maison de charme, en plein centre ville, se démarquant des autres sur le marché alors je vous laisse me contacter !
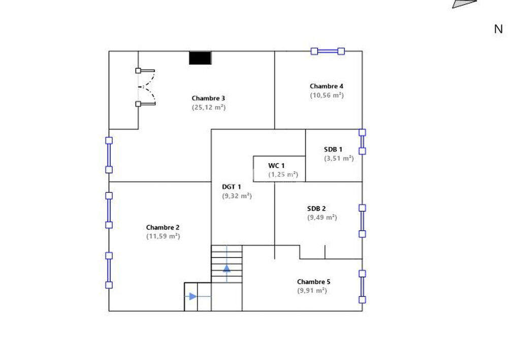
RDC: garage + entrée et accès à l'étage (possibilité d'y aménager un bureau ou autre pièce) R+1: Salon, 3 chambres, salle d'eau et WC R+2: grande pièce de vie incluant, 2 ème salon, salle à manger et cuisine avec îlot central Accès sur ce niveau à la grande terrasse de 20 m2
Kevin Josserand Agent commercial indépendant 844 209 742 R.S.A.C. Lyon Expertimmo honoraires TTC de vente à la charge du vendeur Images soumises aux droits d'auteur Le projet présenté est la propriété intellectuelle de Kevin Josserand
PROJET PROPOSÉ ET CHIFFRÉ PAR DES PROFESSIONNELS: RDC: garage + entrée et accès à l'étage (possibilité d'y aménager un bureau ou autre pièce) R+1: Salon 23 m2, 3 chambres, salle d'eau et WC R+2: grande pièce de vie incluant, 2 ème salon, salle à manger et cuisine avec îlot central Accès sur ce niveau à la grande terrasse de 20 m2
Je vous propose cette maison à fort potentiel, un bien atypique et plein de charme, qui se démarque de part sa configuration, ses surfaces, d'autres biens sur le marcher.
Kevin Josserand Agent commercial indépendant 844 209 742 R.S.A.C. Lyon Expertimmo honoraires TTC de vente à la charge du vendeur Images soumises aux droits d'auteur Le projet présenté est la propriété intellectuelle de Kevin Josserand Cette annonce vous est proposée par JOSSERAND Kevin - EI - NoRSAC: 844 209 742, Enregistré à Greffe du tribunal de commerce de LYON - Annonce rédigée et publiée par un Agent Mandataire -
185 m²
2 595 €
4
3
2024
1
1
Contact Kevin JOSSERAND
Contacter gratuitement à l'aide du formulaire ci-dessous.