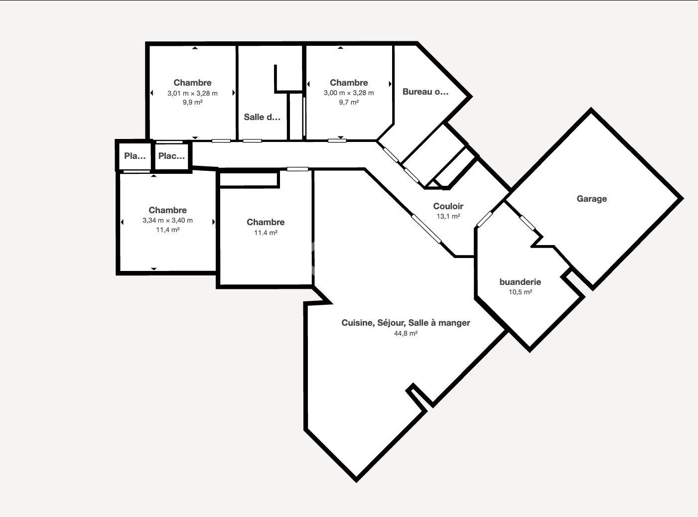
Secteur Mercuer dans un quartier au calme , résidentiel, au coeur de la verdure, une maison individuelle entièrement rénovée en 2023. Elle se compose sur sa partie haute en plein pied d'une entrée ouvrant sur un espace de vie et sur une partie nuit. Pour l'espace de vie , nous avons une cuisine équipée aménagée indépendante de plus de 10 m², ainsi qu'un salon salle à manger d'environ 43 m², ouvrant sur deux terrasse , une petite de 5 m² pour la partie salon et une grande couverte de plus de 25 m² pour la partie salle à manger. L'espace nuit se compose de 3 chambres, une salle d'eau, et toilette indépendant. Sur la partie basse de la maison , nous avons un garage de plus de 57 m² avec deux caves. Une piscine de 10x5 m entièrement refaite en 2024 avec son dôme. La partie extérieure comprends aussi une pergola ,un pool house, un terrain de pétanque, le tout sur une parcelle complètement clôturé de plus de 1600m². Les plus de cette maison rénové en 2023/2024 , remise au norme de l'électricité, sols changés, climatisation réversible, installation d'une cuisine équipée aménagée, peinture. Ce bien est idéal pour une famille, une visite s'impose.
Honoraires à la charge du vendeur. Classe énergie D, Classe climat B Montant moyen estimé des dépenses annuelles d'énergie pour un usage standard, établi à partir des prix de l'énergie de l'année 2021 : entre 1430.00 et 1970.00 . Les informations sur les risques auxquels ce bien est exposé sont disponibles sur le site Géorisques : georisques.gouv.fr.
Votre conseiller TERRE D'ARDECHE IMMOBILIER : Virginie FLASSEUR Agent commercial (Entreprise individuelle) RSAC 905 327 359 00014. N'hésitez pas à nous contacter pour tout complément d'information.
101.88 m²
2 837 €
43 m²
1603 m²
6
3
2
2 (séparés)
Sud
Est
3
1
2
Oui
Oui
Oui
Oui
Consommations énergétiques
Logement économe
231
Logement énergivore (kWhEP/m2/an)
Émissions de gaz à effet de serre
Faible émission de GES
7
Forte émission de GES(kgeqCO2/m2/an)
Contact TERRE D'ARDECHE IMMOBILIER
Contacter gratuitement à l'aide du formulaire ci-dessous.