L'agence 'MON BIEN A LA MER', spécialiste de l'immobilier neuf en BRETAGNE, sélectionne auprès des promoteurs les meilleures opérations aux mêmes prix, sans commission d'agence supplémentaire. Bénéficiez de notre expertise indépendante, et de nos services (aide aux plans, maquette, drone, visite virtuelles). Nous vous présentons ce bien :
Découvrez une opportunité sur BREST OUEST. Située dans le nouvel écoquartier verdoyant de la Fontaine Margot , cette résidence neuve allie parfaitement la sérénité d'un environnement préservé et la praticité urbaine. L'emplacement est idéalement pensé pour séduire étudiants, jeunes actifs et personnel médical, garantissant une excellente rentabilité et une location rapide : À 11 min de l'Hôpital de la Cavale Blanche. À 17 min de l'Université Bretagne Occidentale (UBO). Rejoignez l'hypercentre brestois en 15 min et profitez de la plage de Sainte-Anne à 10 min en voiture. Desserte optimale : Bus (Lignes 4/10/41/52) et Tramway (Ligne A) à proximité directe. Normes RE2020 : isolation thermique renforcée. Pompe à chaleur. Volets roulants électriques, Ascenseur, Salles d'eau équipées. Salle partagée conviviale et de grands locaux vélos sécurisés, Jardin intérieur paysager. Livraison printemps 2028.
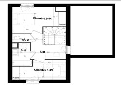
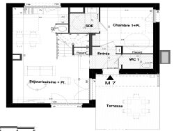
Belle maison contemporaine exposée sud : - Au rez de chaussée : séjour traversant, chambre parentale avec salle d'eau attenante, entrée placards, wc séparé - A l'étage : 2 chambres, dégagement espace bureau, salle de bains, wc séparés - Jardin 169m2 y compris terrasse de 18m2, deux places de parking devant la maison, abri de jardin 7m2.
Nous Consulter.
Honoraires à la charge du vendeur. Non soumis au DPE. Les informations sur les risques auxquels ce bien est exposé sont disponibles sur le site Géorisques : georisques.gouv.fr.
Votre conseiller MON BIEN A LA MER : Gérant - .fr MON BIEN A LA MER Carte T CPI 2201 2018 000 025 040 RCP ACM IARD B1 7025278
Maison contemporaine
85.74 m²
3 848 €
32 m²
169 m²
4
3
1
1
2 (séparés)
2
1
Oui
Contact mon bien à la mer
Contacter gratuitement à l'aide du formulaire ci-dessous.