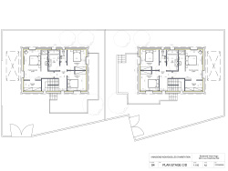
Maison T5 Confort moderne et vie pratique Livraison juin 2026 À découvrir sans attendre ! A L'entrée de LA TOUR DU PIN Dans un petit lotissement calme de seulement 4 maisons individuelles, profitez d'une maison neuve aux dernières normes RT2022, pensée pour le confort au quotidien. Un agencement idéal pour toute la famille Rez-de-chaussée :
Une belle pièce de vie lumineuse avec cuisine ouverte sur salon-séjour
Une chambre ou bureau, parfait pour le télétravail ou une chambre d'amis
Buanderie, cellier, chaufferie et WC séparé
À l'étage :
Deux chambres avec placards intégrés
Salle de bains et WC séparé
Une grande suite parentale avec salle d'eau privative, dressing et terrasse privée
À l'extérieur
Terrain clos avec portail électrique
Garage et abri extérieur
Nombreuses terrasses autour de la maison pour profiter du soleil toute la journée
Les PLUS
Pompe à chaleur pour des économies d'énergie
Dernière norme RT2022 : confort et performance
Environnement calme, tout en étant à deux pas du centre-ville, des commerces, pharmacie, écoles, gares et accès autoroute
EN COUR DE CONSTRUCTION, Livraison prévue : Juin 2026 A visiter et reserver sans TARDER
Cette annonce vous est proposée par GARCON Agnes - EI - NoRSAC: 448 163 691, Enregistré à Greffe du tribunal de commerce de VIENNE - Annonce rédigée et publiée par un Agent Mandataire -
120 m²
3 075 €
350 m²
5
3
2025
1
Consommations énergétiques
Logement économe
55
Logement énergivore (kWhEP/m2/an)
Émissions de gaz à effet de serre
Faible émission de GES
5
Forte émission de GES(kgeqCO2/m2/an)
Contact Agnes GARCON
Contacter gratuitement à l'aide du formulaire ci-dessous.