Maisons neuves en cours de construction Éligibles au Prêt
Villefontaine 38090
0
Honoraires à la charge du vendeur.
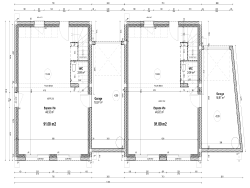
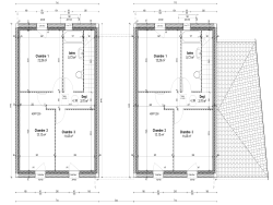
Maisons neuves en cours de construction Éligibles au Prêt à Taux Zéro (PTZ) Frais de Notaires réduits - Livraison sous 6 mois Floriane et Cédric Célis Immobilier, du réseau Expertimo, vous présente cette maison mitoyenne par le garage. Profitez de l'opportunité d'acquérir une maison neuve avec la possibilité de bénéficier du Prêt à Taux Zéro (PTZ), sous conditions d'éligibilité. Idéal pour un premier achat, ce dispositif vous permet de financer une partie de votre acquisition sans intérêts, rendant votre projet encore plus accessible ! De plus, en opptant pour un bien neuf, vous bénéficier de fais de notaires réduits! Cette maison mitoyenne par le garage avec jardin est située dans un environnement calme. Actuellement hors d'eau, elle sera livrée sous six mois, avec des prestations de qualité et la possibilité de personnaliser certains aménagements intérieurs. Une maison pensée pour le confort D'une superficie d'environ 91 m2, la maison comprend :
Au rez-de-chaussée : une pièce de vie spacieuse et un WC indépendant. À l'étage : trois chambres, une salle de bain équipée avec WC. Un garage, garantissant indépendance et praticité.
Des prestations de qualité et une finition personnalisable
RE 2020 Débords de toit en PVC pour une meilleure durabilité. Volets roulants électriques pour plus de confort et de sécurité. Pompe à chaleur Air/Air, pour un bien être en toute saison. Placo avec joints de finition, prêt à être peint. Carrelage dans les pièces de vie, chape prête pour le revêtement de sol dans les chambres. Façade terminée, sanitaires et faïences incluses. VRD (Voirie et Réseaux Divers) et assurances constructeur garantissant une construction aux normes.
Personnalisez votre future maison À ce stade, vous avez encore la possibilité de modifier certains éléments pour qu'ils correspondent à vos goûts et à vos besoins : * L'aménagement intérieur * Le choix du carrelage et de la faïence Prestations à prévoir
Peinture Revêtement de sol dans les chambres Cuisine
Un projet immobilier accessible et avantageux En plus de ses nombreux atouts, cette maison est éligible au Prêt à Taux Zéro (PTZ), permettant aux primo-accédants de financer une partie de leur acquisition sans intérêts. Un véritable coup de pouce pour devenir propriétaire d'un logement neuf, moderne et personnalisable afin d'apporter une touche personnelle avant la livraison ! Bénéficiez egalement de frais de notaire réduit sur l'achat d'une maison neuve! N'attendez plus, contactez-nous dès aujourd'hui pour plus d'informations et pour organiser une visite du chantier. Optez pour un mandat exclusif et bénéficiez de prestations de qualités et d'honoraires réduit à 3% avec un minimum de 6000EUR Cette annonce vous est proposée par GAUTIER Cédric - EI - NoRSAC: 947 991 154, Enregistré à Greffe du tribunal de commerce de VIENNE - Annonce rédigée et publiée par un Agent Mandataire -
91 m²
3 011 €
179 m²
4
3
1
2
2025
1
Contact Cédric Cédric GAUTIER
Contacter gratuitement à l'aide du formulaire ci-dessous.