NOUVEAUTÉ - ARSATI IMMOBILIER STUDIO - NOYAL CHATILLON SUR SEIC
Noyal-Châtillon-sur-Seiche 35230
0
Honoraires à la charge du vendeur.
EXCLUSIVITE AMEPI chez ARSATI immobilier
Tous nos biens en 'off market' et en exclusivité sur nos réseaux sociaux, abonnez vous.
Studio meublé en LMNP - Résidence Cap West
Situé dans une résidence de services Cap West à proximité immédiate de Rennes et des axes principaux, cet appartement constitue un investissement locatif sécurisé.
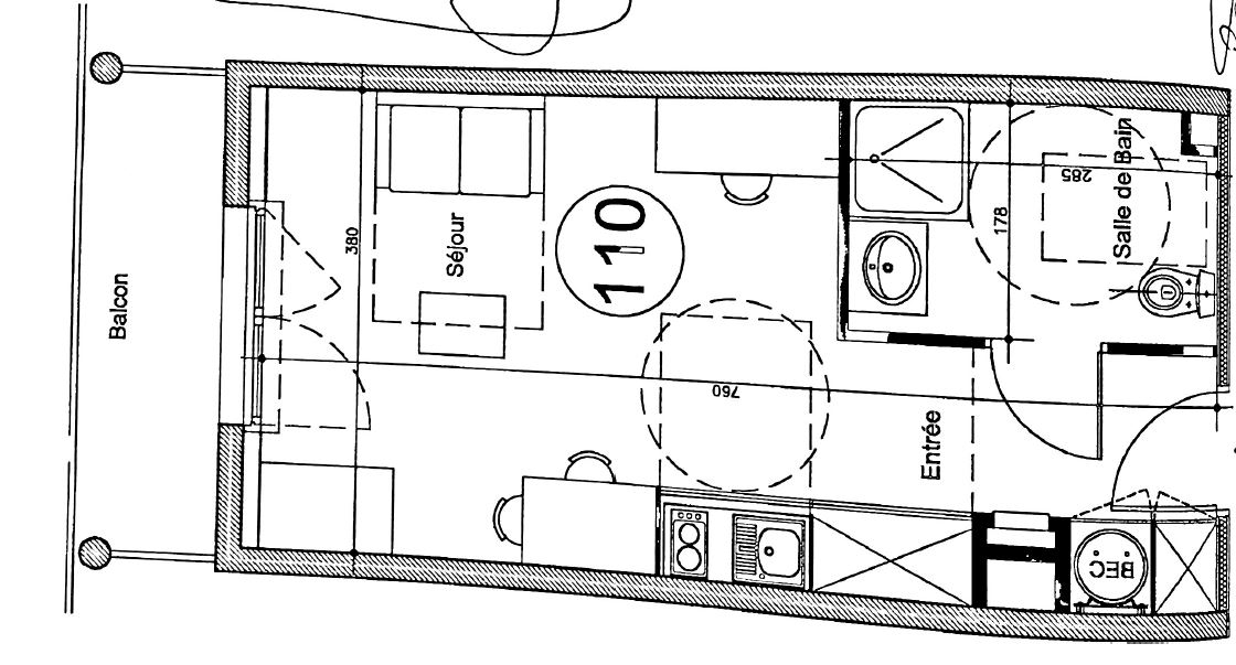
- Surface : 20,88m2 - Étage : 1 - Année de construction : 2019
Ce studio meublé de 20m2 en excellent état est entièrement équipé d'une kitchenette, un espace de vie, une salle d'eau avec WC et un placard de rangement. Vendu occupé dans le cadre d'un bail commercial en LMNP, vous bénéficiez d'un revenu locatif net de charges. Le studio est situé dans une résidence de qualité avec des prestations de services notamment une salle de sport et un laverie. Proche des transport en commun et accès immédiat à Rennes.
Quelques mots sur la commune : La commune fait partie des 43 communes de la communauté d'agglomération Rennes Métropole. Commerces : environ 450 commerçants dont Super U ; LIDL ; Boucherie - Charcuterie ;... Le marché : tous les dimanche matin avec de nombreux commerçants (un marché très vivant)
Contactez nous dès maintenant au :
02_23_44_69_45 ! Notre équipe dynamique se fera un plaisir de répondre à toutes vos questions, de vous fournir des détails supplémentaires, et surtout, de planifier une visite qui pourrait bien changer votre vie ! Ne tardez pas, votre futur chez vous n'attend que vous !
Les informations sur les risques auxquels ce bien est exposé sont disponibles sur le site Géorisques : www.georisques.gouv.fr.
Honoraires à la charge du vendeur. Dans une copropriété de 10 lots. Aucune procédure n'est en cours. DPE en cours. Les informations sur les risques auxquels ce bien est exposé sont disponibles sur le site Géorisques : georisques.gouv.fr.
20.89 m²
4 160 €
1
1
1 sur 3
2019
Oui (10 lots)
Contact ARSATI IMMO
Contacter gratuitement à l'aide du formulaire ci-dessous.