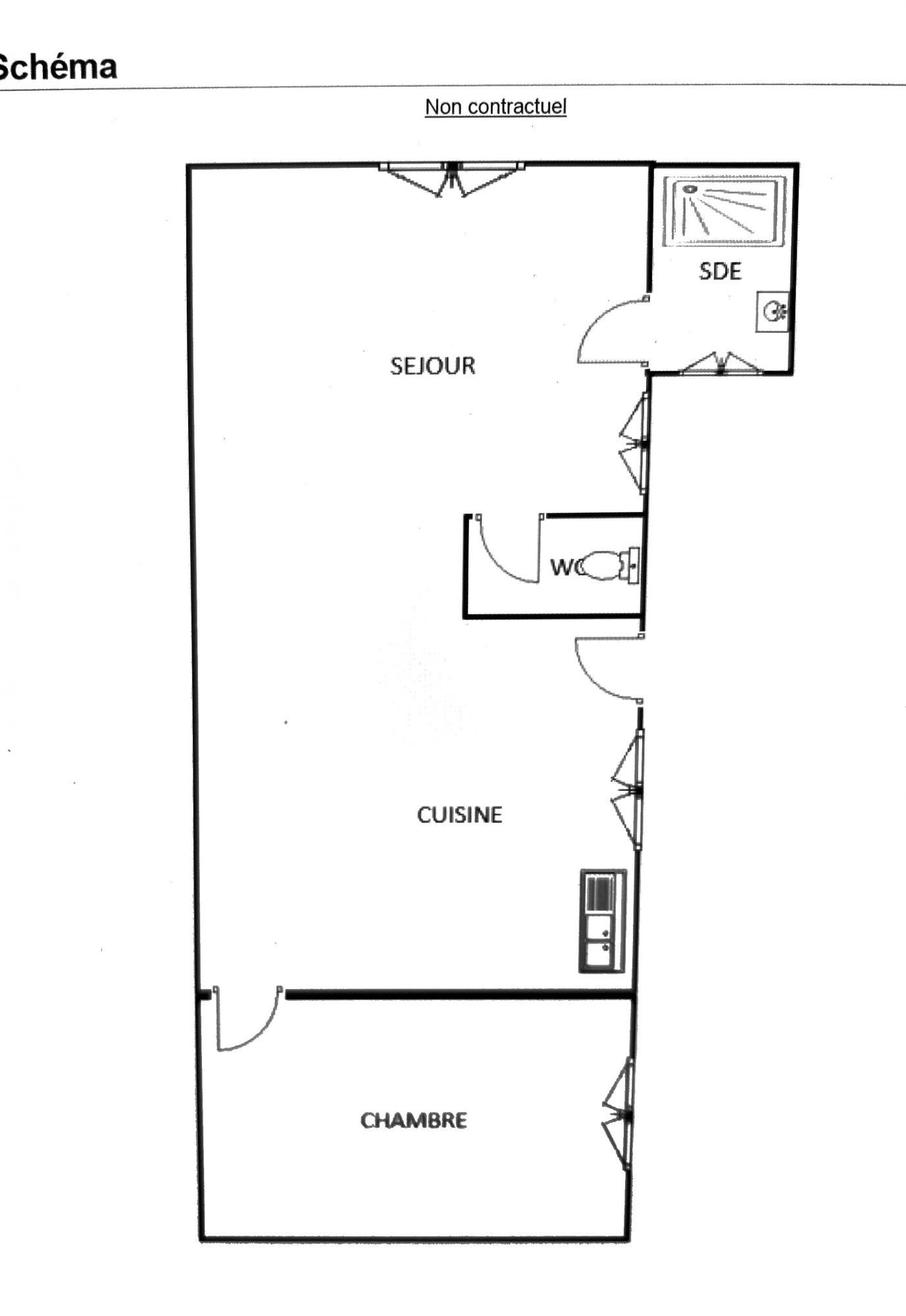
? EXCLUSIVITÉ ? Quartier VIEIL AVON ? Parcelle constructible avec bâti existant. Située dans un environnement calme et recherché, à proximité immédiate des commerces, écoles, du parc du Château, de la forêt et à seulement 2 minutes à pied d'un arrêt de bus menant à la gare. Cette parcelle constructible offre un fort potentiel pour concrétiser votre projet immobilier. Le terrain comprend déjà une maison de plain-pied d'environ 55 m² dont une rénovation complète est à prévoir, avec la possibilité d'extension ou/et de construire une maison neuve. ? Idéal pour : - Un particulier souhaitant bâtir sa résidence principale tout en disposant d'un espace existant (atelier, annexe, logement secondaire ou location temporaire). - Un investisseur en quête d'un projet avec potentiel de développement dans un secteur porteur. ? A noter : Parcelle à viabiliser pour une construction neuve (réseaux à proximité). Secteur très demandé - Rare sur le marché ?? UNE OPPORTUNITÉ A SAISIR ? A VISITER SANS TARDER ! Ce bien vous est proposé par Victor ALVES Agent commercial en immobilier rsac 889 769 782, Tél : 06 50 70 75 83, Agence Remax Hestia AVON. Victor ALVES (EI) Agent Commercial - Numéro RSAC : 889769782 - Melun.