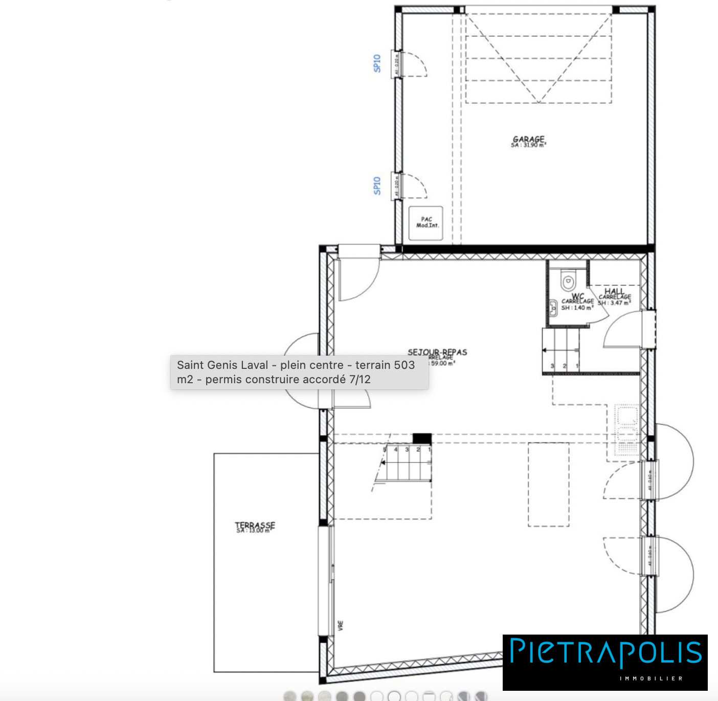
Exclusivité Bernard TAMBELLINI. Vous propose, Parcelle de Terrain avec clôture, Marcy l'étoile 69280 plein centre !
Découvrez ce terrain rare, un véritable joyau qu'on ne trouve qu'une fois tous les 50 ans ! D'une superficie de 770 m², il bénéficie d'un CES de 0,2 et d'une hauteur de construction maximale de 7 mètres (R+1). Le terrain est libre constructeur et la viabilité est en bordure. Une opportunité à ne pas laisser passer ! Prix : 390 000 euros Charge vendeur.
Pour visiter et vous accompagner dans votre projet, contactez BERNARD TAMBELLINI au 06 72 18 29 39 ou par courriel à b.tambellini@proprietes-privees.com
Cette présente annonce a été rédigée sous la responsabilité éditoriale de Bernard TAMBELLINI agissant sous le statut d'agent commercial immatriculé au RSAC LYON 801852955 auprès de la SAS PROPRIETES PRIVEES, Réseau national immobilier, au capital de 40000 euros, 44 ALLÉE DES CINQ CONTINENTS - ZAC LE CHÊNE FERRÉ, 44120 VERTOU, RCS Nantes n° 487 624 777 00040, Carte professionnelle T et G n° CPI 4401 2016 000 010 388 CCI Nantes-Saint Nazaire. Garantie GALIAN - 89 rue de la Boétie, 75008 Paris.
Mandat réf : 420491 Le professionnel garantit et sécurise votre projet immobilier.
ERP : les informations sur les risques auxquels ce bien est exposé sont disponibles sur le site Géorisques : www.georisques.gouv.fr.
Bernard TAMBELLINI (EI) Agent Commercial - Numéro RSAC : LYON 801852955 - .
770 m²
506 €
770 m²
Oui
Contact Bernard TAMBELLINI
Contacter gratuitement à l'aide du formulaire ci-dessous.