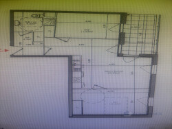
Réelle Opportunité. Au 2 Place Alphonse Planel, dans résidence de qualité 2013, au 4ème étage et dernier étage, rare type 3 de 59m² environ donnant sur une grande terrasse de 8m² envrion au calme et plein sud. Espace de vie 25m² donnant sur balcon repas, deux grandes chambres avec placard, grande salle de bains équipée avec WC. Vendu libre de toute occupation. Le prix de ce confort 130 000 uros, garage fermé en sous-sol (+15000 uros), honoraires inclus charges vendeur. Charges annuelles 2512 uros soit 209 uros mensuel. Bien soumis au régime de la copropriété 58 lots. Pas de précedure en cours. DPE D(249kwh/m2/an) et gaz effet de serre D(51kg co2/m2/an). CONFIANCE IMMOBILER, vous accompagne dans tous vos projets (estimation, vente, défiscalisation immobilière).Dossier suivi par Karl GUDELEKIAN, tél : 06.62.50.75.76 agissant sous statut d'agent commercial carte ADC69012022000001898, barème d'honoraires (se reporter au site de confiance immobilier). Agence transaction 04.37.43.41.31
Honoraires à la charge du vendeur. Dans une copropriété de 58 lots. Quote-part moyenne du budget prévisionnel 2 512 /an. Aucune procédure n'est en cours. DPE en cours. Les informations sur les risques auxquels ce bien est exposé sont disponibles sur le site Géorisques : georisques.gouv.fr.