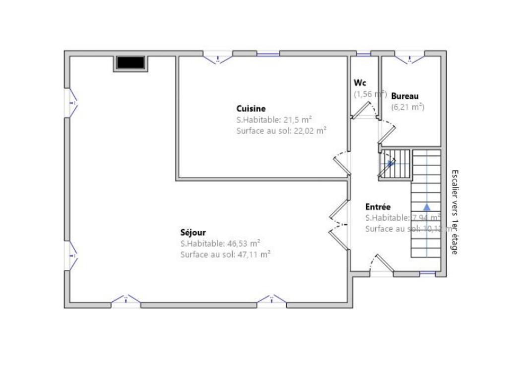
L'agence de l'Empereur vous propose de découvrir, à deux pas du coeur de ville, cet appartement de 193 m2 habitables, rare, offrant une qualité de vie exceptionnelle, comparable à celle d'une maison. Il incarne un art de vivre privilégié. Baigné de lumière grâce à une exposition idéale, ce bien se distingue par ses deux magnifiques terrasses, véritables espaces de vie extérieurs, parfaits pour recevoir, se détendre ou profiter pleinement des beaux jours. L'intérieur propose une très belle réception, spacieuse et conviviale, qui se prolonge sur une véranda chauffée, actuellement aménagée en bar et second salon et les deux grandes terrasses généreuses et parfaitement exposées avec une vue dégagée, sans vis-à-vis, sur les espaces paysagers de cette petite copropriété, uniquement composée de deux habitations. Véritable prolongement de l'espace de vie, elles offrent un cadre parfait pour recevoir en toute élégance et savourer des instants de quiétude en plein air. Une distribution harmonieuse comprenant également une cuisine aménagée et équipée, en open space sur la pièce à vivre, une vraie salle à manger et quatre chambres dont une suite parentale avec salle de bains et dressing. Grand emplacement spécifique pour quatre voitures, facilitant la vie quotidienne, et bel espace de rangement faisant office de cave. Un bien unique, alliant volume, luminosité et extérieurs d'exception, dans un emplacement privilégié à proximité immédiate de toutes les commodités (commerces et services, scolaires publics et privés). Ce bien singulier propose une expérience résidentielle rare, face au parc de Bois Préau, très prisé par les Rueillois. Pour tout dire, une signature confidentielle pour amateurs de lieux d'exception. Les informations sur les risques auxquels ce bien est exposé sont disponibles sur le site Géorisques : www.georisques.gouv.fr
193 m²
6 477 €
51 m²
7
4
1
2
3
117 € / mois
1974
Sud
Ouest
Oui
4
Oui
2
Oui
Oui (336 lots)
Consommations énergétiques
Logement économe
208
Logement énergivore (kWhEP/m2/an)
Émissions de gaz à effet de serre
Faible émission de GES
45
Forte émission de GES(kgeqCO2/m2/an)
Contact Agence De L'empereur
Contacter gratuitement à l'aide du formulaire ci-dessous.