L'agence 'MON BIEN A LA MER', spécialiste de l'immobilier neuf sur les côtes Bretonnes, vous présente :
Au coeur de l'enceinte historique de Saint-Malo Intra-Muros, à seulement 100 mètres de la plage du Môle, toutes commodités à pied :
Découvrez ce duplex neuf d'exception, niché au dernier étage avec ascenseur d'une résidence contemporaine alliant confort moderne et charme du vieux Saint-Malo. Résidence et appartement entièrement rénovés sous garantie décennale. Normes isolation thermique et phonique actuelles. Frais de notaire classiques.
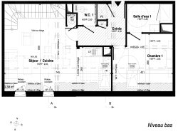
Ce duplex de 114,2m2 au sol vous offre :
- 1er niveau : Séjour double hauteur de 31,2m2 utiles, Chambre parentale avec salle d'eau douche attenante (14,9+7,4m2 utiles), wc séparé, entrée. - Etage : Vide sur séjour, deux très belles chambres de 22 et 15m2 utiles, Salle d'eau douche 6m2, wc séparé, placards.
Parquet contrecollé, faïence et carrelage PORCELANOSA, wcs suspendus, stores et vélux électriques. Possibilité achat parking sous sol de la résidence.
Nous Consulter.
Honoraires à la charge du vendeur. Classe énergie C, Classe climat A Montant estimé des dépenses annuelles d'énergie pour un usage standard : entre 1327.00 et 1796.00 sur les années 2021, 2022 et 2023 (abonnements compris). Les informations sur les risques auxquels ce bien est exposé sont disponibles sur le site Géorisques : georisques.gouv.fr.
Votre conseiller MON BIEN A LA MER : Gérant - .fr MON BIEN A LA MER Carte T CPI 2201 2018 000 025 040 RCP ACM IARD B1 7025278
101 m²
6 871 €
31 m²
4
3
1
1
2 (séparés)
3 sur 3
Oui
Oui
Oui
Consommations énergétiques
Logement économe
166
Logement énergivore (kWhEP/m2/an)
Émissions de gaz à effet de serre
Faible émission de GES
5
Forte émission de GES(kgeqCO2/m2/an)
Contact mon bien à la mer
Contacter gratuitement à l'aide du formulaire ci-dessous.