Superbe T4 de 67,5m² avec Balcon - Rue Parmentier, Saint-Fons
Vénissieux 69200
0
Honoraires à la charge du vendeur.
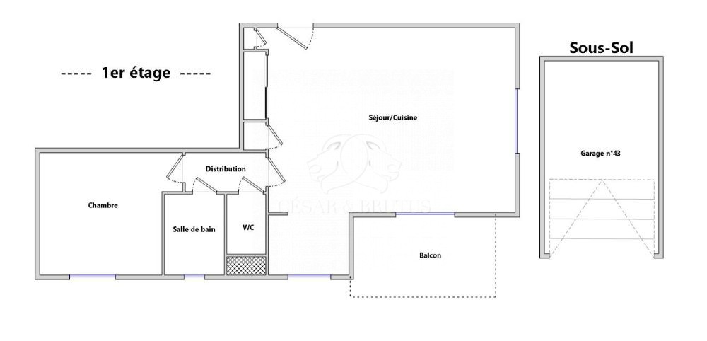
Quatuor vous présente ce spacieux T4 de 67,5m² en très bon état, exposé Sud-Nord, situé rue Parmentier, Saint-Fons, à la limite de Vénissieux, au 1er étage sur 4 sans ascenseur.
Visite virtuelle disponible sur les plateformes de vente.
À propos du bien :
Appartement très calme et lumineux dans une copropriété familiale et sécurisée.
Il se compose de :
- Une entrée avec grands placards et climatisation. - Un séjour de 17m² orienté Sud et donnant sur une première chambre de 11m². Possibilité d'ouvrir le séjour sur la chambre pour obtenir une très belle pièce de vie de 28m². - Cuisine indépendante, aménagée et équipée, avec accès sur un Balcon sans vis-à-vis. - Deux autres chambres de plus de 9m² orientées Nord. - Une salle de bains. - Un WC indépendant. - De nombreux rangements. Aucun travaux à prévoir.
Parking Collectif. Une cave complète le bien. Un garage est aussi disponible en supplément.
Les atouts :
- En bon état - Isolation et façades déjà votées - Balcon - Calme. - Lumineux - Garage
DPE D.
La Copropriété :
La copropriété a déjà votée le ravalement des façades ainsi que l'isolation des bâtiments. Vous trouverez une copropriété en très bon état et isolée lors de votre emménagement.
La Localisation :
- Idéalement situé à la limite entre Saint-Fons et Vénissieux, vous trouverez tous les commerces dont vous aurez besoin : pharmacie, commerces, supermarchés, écoles maternelles et primaires, ainsi que collège et lycée à proximité. - Le Centre de Vénissieux ou encore le Tramway le plus proche sont à 10 minutes à pied. - Pour les enfants, le Stade Municipal est en face de la résidence. Une école Primaire ainsi qu'un Collège sont à cinq minutes à pied.
Les Transports :
Les Arrêts 'Péri - Picard' et 'Saint-Fons Parmentier' devant la résidence avec les bus C12 et 60 vous emmèneront notamment à Bellecour, Debourg et son Métro B, Hôpital Feyzin.
Cet appartement clés en main vous offre une vie familiale saine dans un cadre de vie dynamique.
Honoraires à la charge du vendeur. Dans une copropriété de 90 lots. Aucune procédure n'est en cours. Classe énergie D, Classe climat D Montant moyen estimé des dépenses annuelles d'énergie pour un usage standard, établi à partir des prix de l'énergie de l'année 2026 : entre 1101.00 et 1551.00 . Les informations sur les risques auxquels ce bien est exposé sont disponibles sur le site Géorisques : georisques.gouv.fr.