L'Agence MON BIEN A LA MER, Spécialiste de l'immo neuf en Bord de Mer, vous présente :
TRAVAUX EN COURS - Livraison juin 2026 : Résidence au sud de LA ROCHELLE, axe Emile Normandin, entre le marais du Tasdon, plage d'Aytré et Port des Minimes, tous commerces et transports à proximité. Nombreuses pistes cyclables permettant d'accéder : Vieux Port 8min, Marais du Tasdon 5 min, gare TGV 2h30 Paris 7 min, 8 min campus universitaire, 6 min Plage du Roux. Ascenseur, Frais de notaire réduits.
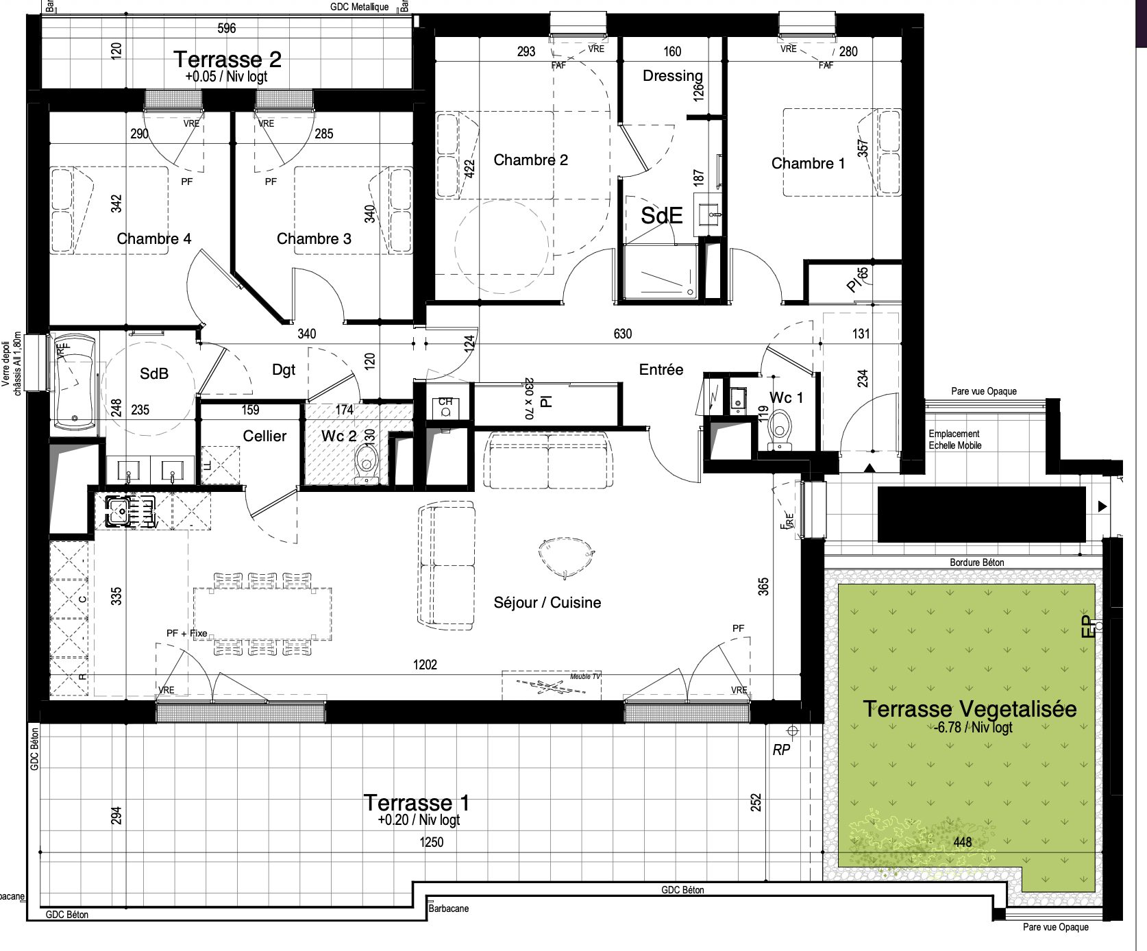
Ce T5 est situé au 4è étage, expo sud ouest, offrant une superbe terrasse de 48m2 : - Séjour de 45m2 - 4 Chambres - Deux salles d'eau, deux wcs, cellier, entrée, dégagement - Parking grande taille en sous sol.
Nous Consulter
Honoraires à la charge du vendeur. Non soumis au DPE. Les informations sur les risques auxquels ce bien est exposé sont disponibles sur le site Géorisques : georisques.gouv.fr.
Votre conseiller MON BIEN A LA MER : Gérant - .fr MON BIEN A LA MER Carte T CPI 2201 2018 000 025 040 RCP ACM IARD B1 7025278
109.98 m²
5 274 €
45 m²
4
3
2
2 (séparés)
4 sur 6
Oui
1
1
Oui
Contact mon bien à la mer
Contacter gratuitement à l'aide du formulaire ci-dessous.