Situé à Mérignac au coeur d'une résidence contemporaine et verdoyante, proche des commerces et transports, ce bel appartement 2 pièces de près de 50 m² offre un cadre de vie agréable, baigné de lumière. Nichée dans un écrin de verdure, la résidence bénéficie d'un environnement paysager soigné et d'aménagements de qualité, à quelques pas seulement des commerces de proximité, des établissements scolaires et des transports en commun (tram A et lignes de bus), facilitant les déplacements au quotidien.
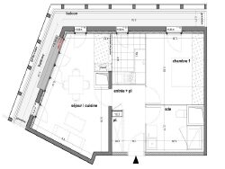
Vous y trouverez un grand séjour de 25m2, orienté plein sud, où vous profiterez d'un ensoleillement généraux tout au long de la journée. À travers de larges ouvertures, il se prolonge naturellement vers une terrasse de près de 11 m², également accessible depuis la chambre. Un espace idéal pour vos petits-déjeuners au soleil ou vos soirées d'été. Une chambre intime, une salle d'eau moderne avec WC et une entrée astucieusement aménagée avec rangements complètent ce bien fonctionnel et bien pensé.
Un appartement idéal pour un pied-à-terre au coeur d'un cadre paisible et verdoyant, où confort moderne et douceur de vivre se rencontrent au quotidien.
Une place de parking sécurisée complète ce bien en sus obligatoire (10 000).
- Aucun travaux à prévoir - Ascenseur - Frais de Notaires Réduits - Garanties - RT 2012 - Disponible - ...
EXPOSÉ SUD-OUEST A DEUX PAS DU TRAM
Honoraires à la charge du vendeur. Dans une copropriété de 25 lots. Aucune procédure n'est en cours. DPE en cours. Les informations sur les risques auxquels ce bien est exposé sont disponibles sur le site Géorisques : georisques.gouv.fr.