Honoraires à la charge de l'acquéreur (Prix hors honoraires : 52440 euros).
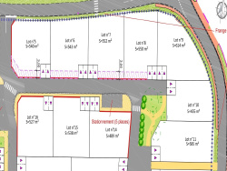
Aux portes de SAINTES, dans un environnement vert et calme et à 30 minutes des plages, BFG IMMOBILIER présente en exclusivité dans petit lotissement situé à proximité du centre bourg, terrain à bâtir viabilisé avec tout à l'égout, d'une superficie de 552 m2. Lot No 7. Libre de constructeur. Zone UB. Non soumis au DPE.
Les informations sur les risques auxquels ce bien est exposé sont disponibles sur le site Géorisques : www. georisques. gouv. fr
552 m²
100 €
552 m²
5.72 %
Contact Bfg Immobilier
Contacter gratuitement à l'aide du formulaire ci-dessous.