TERRAIN DE 336 M2 + MAISON À BATIR DE 111 M2 - CENTRE VILLE
Châteaugiron 35410
0
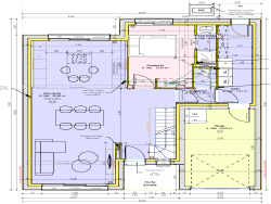
NOUVEAU PROJET DE CONSTRUCTION SUR CHATEAUGIRON ! Vous êtes à la recherche d'un projet immobilier dans une ville dynamique et familliale à proximité des commerces et des commodités ? Nous avons ce qu'il vous faut ! Le Cabinet Yvanez Immobilier a le plaisir de vous présenter ce projet situé en plein coeur de Châteaugiron et élaboré par un maître d'oeuvre renommé sur notre secteur. Cette construction saura vous séduire pas son emplacement, son design et ses volumes. Ses atouts majeurs : 4 chambres, Pièce de vie de plus de 40 m2, stationnement, garage, jardin et proximité immédiate des commodités. L'ensemble de ce projet a été intégralement pensé pour vous créer un lieu de vie confortable et acceuillant. Les projections réalisées sont une base de travail. Elles vous permettront d'imaginer et d'affiner les aménagements au regard de vos propres besoin. Contactez-nous pour obtenir des informations complétaires, par téléphone au 02 99 37 26 74 ou par mail : cabinet.yvanez@gmail.com PRIX HAI DU TERRAIN DE 336 M2 : 111 850 euros (inclus 5850 euros d'honoraires d'agence) + coût de construction de la maison à déterminer selon projet. Les informations sur les risques auxquels ce bien est exposé sont disponibles sur le site Géorisques : www.georisques.gouv.fr
111 m²
3 243 €
42 m²
6
4
2
2
Est
Ouest
1
Contact YVANEZ
Contacter gratuitement à l'aide du formulaire ci-dessous.