Nouveau bien chez UNI IMMOBILIER !
Une grande maison type T10 de 325 m² sur 729m²
Énorme potentielle !
Découvrez ce bien à travers les mots du propriétaire : "Cette grande maison de 325 m², située dans le secteur recherché de Verson, certes, elle demande une rénovation complète, mais elle offre une toile blanche pour ceux qui rêvent de créer un lieu de vie à leur image.
Dès l'entrée, vous serez séduits par ses magnifiques hauteurs sous plafond, qui apportent une sensation d'espace et de lumière rare.
Ce volume exceptionnel permet d'imaginer de grands espaces de vie chaleureux et conviviaux, parfaits pour accueillir une grande famille.
C'est une maison avec une âme, pleine de potentiel, qui n'attend que d'être révélée!
Si vous avez le goût des beaux projets, elle est faite pour vous.
Localisation : VERSON
Date de construction : 1950
Les points forts de ce bien :
- Grande maison de famille
- Belle luminosité
- Sous sol complet
- Commodités à proximité
- Beaux volumes
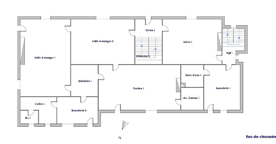
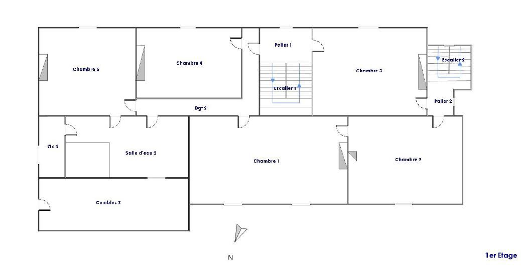
La maison se compose comme suit :
Au rez-de-chaussée :
- 1 cuisine
- 1 très grande pièce de vie salon / salle à manger
- 1 salle de bain
- 1 WC
- 3 chambres
Au 1er étage :
- 4 chambres
- 4 salles de bains / salles d'eaux
- 1 WC
Au 2ème étage:
- 2 chambres
- 1 salle de bain
Sous sol complet
Une terrasse
Type de chauffage : Chaudière gaz
Type de fenêtres : double vitrage - PVC - Alu
Non soumis au DPE
Taxe foncière : 3500€
Les informations sur les risques auxquels ce bien est exposé sont disponibles sur le site Géorisques : www.georisques.gouv.fr
Prix : 730 000 € FAI
Taux d'honoraires : 5,79% TTC soit 690 000 € hors frais
Lien de la visite virtuelle : https://my.matterport.com/models/wJSG6g9mWdh
Contact direct :
Adrien CHAMPAIN
07 63 45 72 04
achampain@uni-immobilier.fr
Cette annonce a été rédigée par l'agence immobilière UNI (SIRET : 908 382 542 00011) et par EI Adrien CHAMPAIN, mandataire indépendant en immobilier, agent commercial de l'agence UNI (Immatriculation au RCS : 829 846 856 R.C.S CAEN).
325 m²
2 092 €
600 m²
10
7
3
5
Séparée
Contact Adrien CHAMPAIN
Contacter gratuitement à l'aide du formulaire ci-dessous.