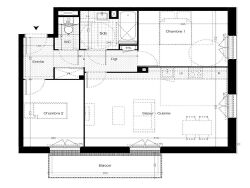
VITRE - Appartement 3 pièces 62.30m² Sud- balcon de 6.60m² - 2ème étage - ascenseur - stationnements en sous-sol sécurisés. Non loin du centre de Vitré, dans une résidence contemporaine aux dernières normes, proche des commerces et commodités,,. appartement de 3 pièces de 62.30m² exposé Sud situé au 2ème étage avec ascenseur comprenant : une entrée avec placard, dégagement, un séjour salon avec cuisine ouverte, donnant sur un balcon de 6.60m² , deux chambres, une salle de bains, wc indépendant. Double stationnements en sous-sol sécurisés. Prix promoteur - frais de notaire réduits - normes RT2020. Les informations sur les risques auxquels ce bien est exposé sont disponibles sur le site Géorisques : www.georisques.gouv.fr. Photos non contractuelles - Suggestions d'aménagements Copropriété de 38 lots - dont 38 lots habitation. (Pas de procédure en cours). Charges annuelles : 892 euros.