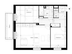
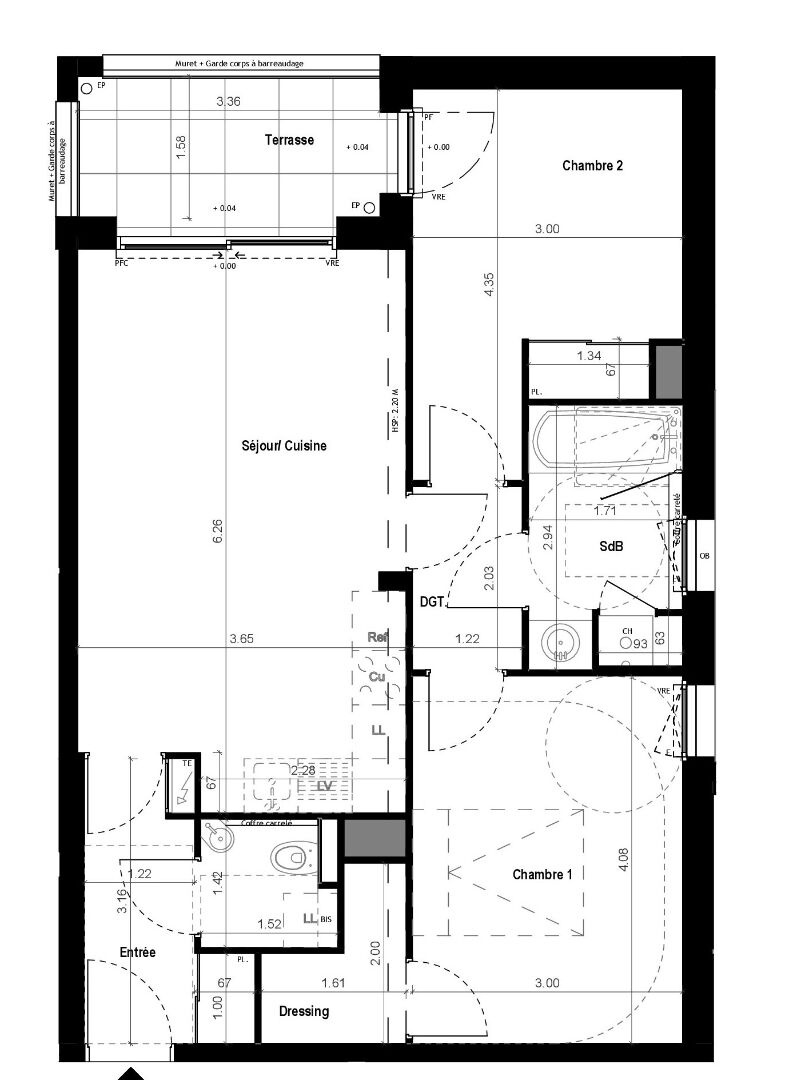
VITRE - Appartement 3 pièces 62m² Ouest - balcon de 6.30m² - 1er étage - ascenseur - stationnements en sous-sol sécurisés. Dans une résidence contemporaine aux dernières normes, non loin du centre de vitré, proche des commerces, commodités, équipements sportifs et culturels,,. appartement de 3 pièces de 62m² exposé Ouest situé au 1er étage avec ascenseur comprenant : une entrée avec placard, un séjour salon avec cuisine ouverte, donnant sur un balcon de 6.30m² , deux chambres, une salle de bains, wc indépendant. Double stationnements en sous-sol sécurisés. Prix promoteur - frais de notaire réduits - normes RT2020. Les informations sur les risques auxquels ce bien est exposé sont disponibles sur le site Géorisques : www.georisques.gouv.fr. Photos non contractuelles - Suggestions d'aménagements Copropriété de 38 lots - dont 38 lots habitation. (Pas de procédure en cours). Charges annuelles : 892 euros.