Annonces
Grand Est
Haut-Rhin
Mulhouse
Location appartement exposition sud Mulhouse
Transaction
Vente
Location
Viager
Bien
Appartement
Maison
Terrain
Local
Stationnement
Immeuble
Entrepôt
Boutique
Bureau
Autre
Ville, CP, département, ...
Mulhouse (68)
0
10
20
30
40
50
km
0
10
25
40
km
0
10
20
30
45
min
Surface
m²
m²
Terrain
m²
m²
Budget
€
€
Pièce(s)
Chambre(s)
Année de construction
Mot clé 1
Mot clé 2
Mot clé 3
Mot clé 4
Filtres
Sans vis à vis
Annonces avec photo
Mobilité réduite
Mandat exclusif
Annonces de - de 24h
Annonces de - de 3j
Annonces de - de 7j
Toutes les annonces
de critères
1 appartement exposition sud en location à Mulhouse (68)
Trier par :
Prix
| Date
Modifier ma recherche
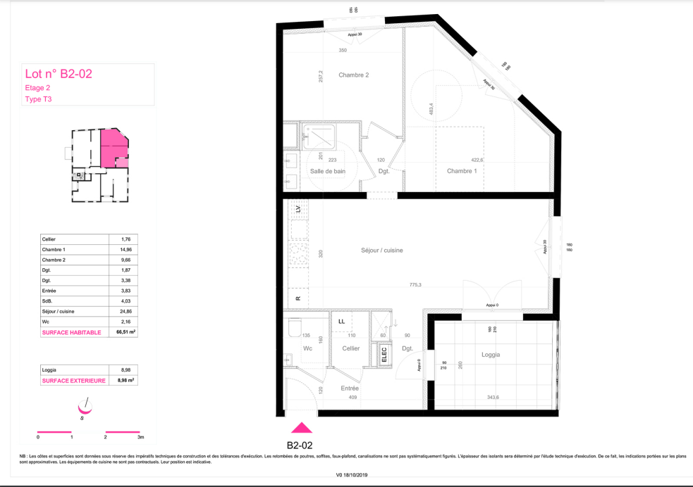
6
66.51 m²
T3
2
Location appartement
Mulhouse 68100 - 0
782 €
...51 m2 sis au 2eme étage...
Voir l'annonce
Code postaux
68000
*
68069
*
68070
*
68100
*
68110
*
68120
*
68190
*
68200
*
68260
*
68270
*
68350
*
68390
*
68460
*
Quartiers de Mulhouse
Bourtzwiller
*
Centre Historique Ouest
*
Les Côteaux
*
Villes voisines
Riedisheim
*
Pfastatt
*
Illzach
*
Brunstatt
*
Lutterbach
*
Kingersheim
*
Didenheim
*
Rixheim
*
Richwiller
*
Sausheim
*
Zimmersheim
*
Morschwiller-le-Bas
*
Bruebach
*
Flaxlanden
*
Eschentzwiller
*
Habsheim
*
Baldersheim
*
Wittenheim
*
Zillisheim
*
Hochstatt
*
Types de bien
duplex
1
studio
11
T1
11
T2
33
T3
27
T4
10
T5
2
T7
2
Autres...
avec 1 chambre
32
avec 2 chambres
30
avec 3 chambres
8
avec 4 chambres
2
avec 5 chambres
1
ancien
4
arboré
2
avec ascenseur
28
à rénover
1
bourgeoise
1
avec cave
27
charges comprises
11
cuisine équipée
23
avec double vitrage
12
avec dressing
2
exposition sud
1
avec garage
13
isolée
1
avec jardin
1
éligible loi Pinel
5
lumineux
22
de luxe
7
meublé
15
mobilité réduite
5
moderne
9
nature
8
neuf
4
avec parking
11
pas en copropriété
45
de plain pied
1
prix en baisse
3
proche autoroute
2
proche bus
10
proche centre-ville
17
proche cinéma
1
proche commerces
14
proche crèche
1
proche gare
10
proche hôpital
2
proche lac
25
proche lycée
4
proche médecin
2
proche parc
2
proche port
26
proche supermarché
7
proche tennis
1
proche tramway
8
proche université
1
récent
3
rénové
21
en rez-de-jardin
1
avec terrasse
10
vue dégagée
13
vue panoramique
1