Reims 51100 - 0
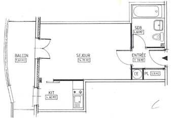
... Référence G60. Idéalement situé pour les étudiants, à 2 pas de Science Po, proche du lycée Clémence...